Vuokrataan - Tampere
Kelloportinkatu 1, Tampella, 33100 Tampere #10863668
Osoite
Kelloportinkatu 1, 33100 Tampere
Muuta
Entiseen Tampellan pellavatehtaan taloon on saneerattu vuonna 2017 uusia ja laadukkaita toimistoja.
Suurista kaari-ikkunoista aukeavat koski- ja kaupunkimaisemat.
Koskitammen arvokiinteistö onkin merkittävä osa Tammerkosken kansallismaisemaa.
Uniikkeja, persoonallisia tiloja jotka soveltuvat monipuolisesti erilaisiin tarpeisiin.
Helppo saavutettavuus. Kiinteistö sijaitsee kävelyetäisyydellä Tampereen keskustan palveluista.
Rautatieasemalle on matkaa noin kilometri. Paikalle on helppo saapua myös busseilla, pysäkit aivan rakennuksen vieressä.
Kiinteistöllä on oma pysäköintihalli ja pihaparkkipaikkoja. Paljon pysäköintitilaa tarvitseville yrityksille on
vuokrattavissa paikkoja myös alueen pysäköintilaitoksista.
Ensimmäisessä kerroksessa sijaitsee laadukas ravintola Tampella, joka palvelee kiinteistön käyttäjiä ja
kaupunkilaisia. Ravintola tarjoaa vuokralaisille lounasmenun lisäksi kokouspalveluita sekä mahdollisuuden
kabinettitilojen käyttöön.
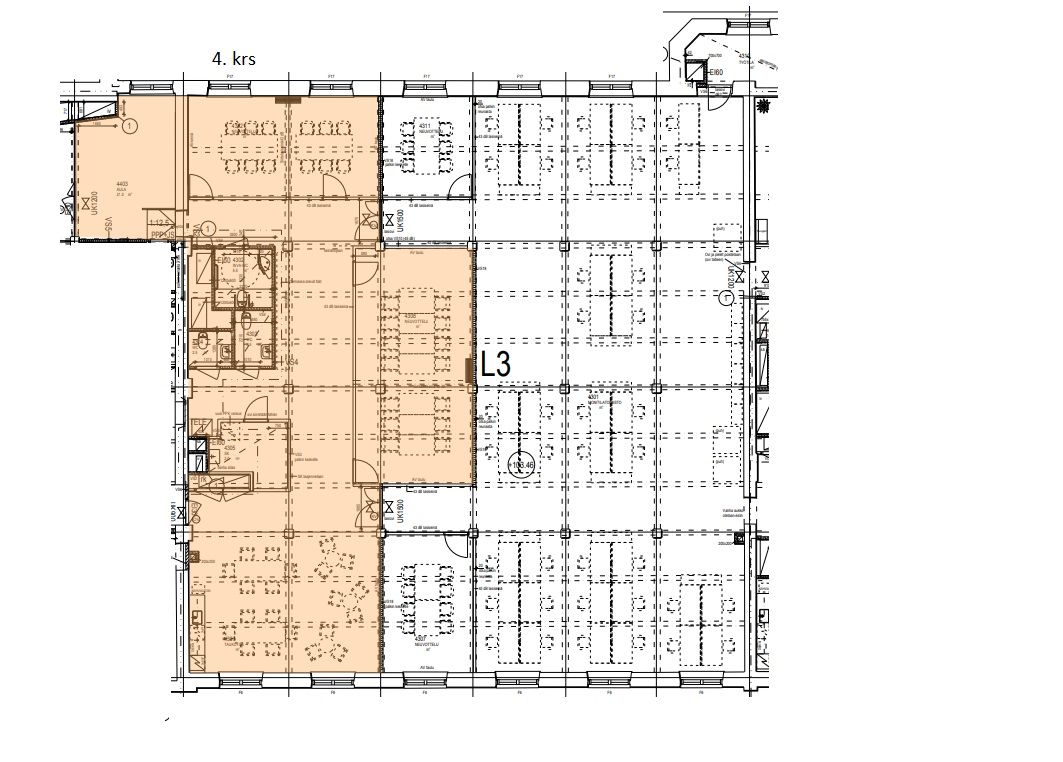
Nyt vapautumassa upea 4. kerroksen tila 233m2. Suuret ikkunat Tammerkoskelle.
Tämän tilan erikoisuutena on erinomainen äänieristys. Tilan neuvotteluhuoneiden seinät ovat
täyslasiset ja äänieristys on jopa 43 db taaten miellyttävän toimintaympäristön.
Kysy näyttöä tai lisätietoja jani.kaisto@kiinteistotahkola.fi tai 040 960 6424.
Suurista kaari-ikkunoista aukeavat koski- ja kaupunkimaisemat.
Koskitammen arvokiinteistö onkin merkittävä osa Tammerkosken kansallismaisemaa.
Uniikkeja, persoonallisia tiloja jotka soveltuvat monipuolisesti erilaisiin tarpeisiin.
Helppo saavutettavuus. Kiinteistö sijaitsee kävelyetäisyydellä Tampereen keskustan palveluista.
Rautatieasemalle on matkaa noin kilometri. Paikalle on helppo saapua myös busseilla, pysäkit aivan rakennuksen vieressä.
Kiinteistöllä on oma pysäköintihalli ja pihaparkkipaikkoja. Paljon pysäköintitilaa tarvitseville yrityksille on
vuokrattavissa paikkoja myös alueen pysäköintilaitoksista.
Ensimmäisessä kerroksessa sijaitsee laadukas ravintola Tampella, joka palvelee kiinteistön käyttäjiä ja
kaupunkilaisia. Ravintola tarjoaa vuokralaisille lounasmenun lisäksi kokouspalveluita sekä mahdollisuuden
kabinettitilojen käyttöön.
Nyt vapautumassa upea 4. kerroksen tila 233m2. Suuret ikkunat Tammerkoskelle.
Tämän tilan erikoisuutena on erinomainen äänieristys. Tilan neuvotteluhuoneiden seinät ovat
täyslasiset ja äänieristys on jopa 43 db taaten miellyttävän toimintaympäristön.
Kysy näyttöä tai lisätietoja jani.kaisto@kiinteistotahkola.fi tai 040 960 6424.
Vapautuu
Heti vapaa
Kerros
4
Ota yhteyttä
Kiinteistö-Tahkola Oy
Kuokkamaantie 4, 33800 Tampere
Näytä puhelinnumero
044 705 0522
Jani Kaisto
Näytä puhelinnumero
040 960 6424
Pyydä lisätietoa
