Vuokrataan toimistotilat - Jyväskylä
Piippukatu 7, 40100 Jyväskylä #10863634
Edustava katutason toimisto historiallisessa rakennuksessa Piippukadulla – jaettavissa 50–150 m²
Osoite
Piippukatu 7, 40100 Jyväskylä
Tilatyyppi
Toimistotilaa
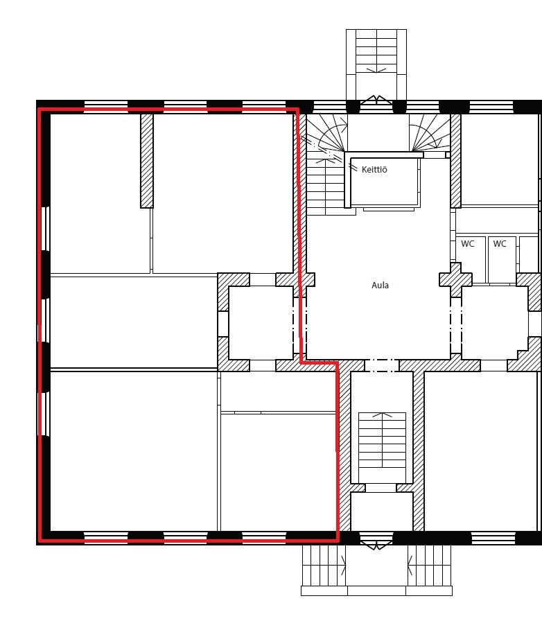
50 m2
Tilajako
Jaettavissa
Huoneisto voidaan vuokrata osissa n. 50m², 22m² ja 70m²
Vuokra
Kysy hintaa
Vuokraan sisältyy lämpö
Kiinteistö
Tämä upea ja uniikki kohde etsii uutta käyttäjää.
Kysessä vanha 1926 Schaumanin pääkonttoriksi rakennettu ja 2010-luvulla täydellisesti saneerattu kohde. Remontin yhteydessä mm. talotekniikka täysin saneerattu ja tilaan asennettu jäähdytetty tulo/poisto ilmanvaihto.
Näytöt paikan päällä onnistuu joustavasti.
Kysessä vanha 1926 Schaumanin pääkonttoriksi rakennettu ja 2010-luvulla täydellisesti saneerattu kohde. Remontin yhteydessä mm. talotekniikka täysin saneerattu ja tilaan asennettu jäähdytetty tulo/poisto ilmanvaihto.
Näytöt paikan päällä onnistuu joustavasti.
Sijainti
Pysäköinti
Pihassa paikat vuokralaisille. Asiakkaille pysäköintimahdollisuudet lähistöllä. Lutakon kannen alla suuri pysäköintihalli.
Vapautuu
Heti
Katutasossa
Näkyvällä paikalla
Jaettavissa
Ota yhteyttä
Business Network Oy
Kauppakatu 41 A 8
40100 JYVÄSKYLÄ
Näytä puhelinnumero
044 3666 937
Juuso
juuso.paavola@businessnetwork.fi
Pyydä lisätietoa
