Vuokrataan toimistotilat - Helsinki
Vuorikatu 20, Kaisaniemi, Kluuvi, 00100 Helsinki #10863523
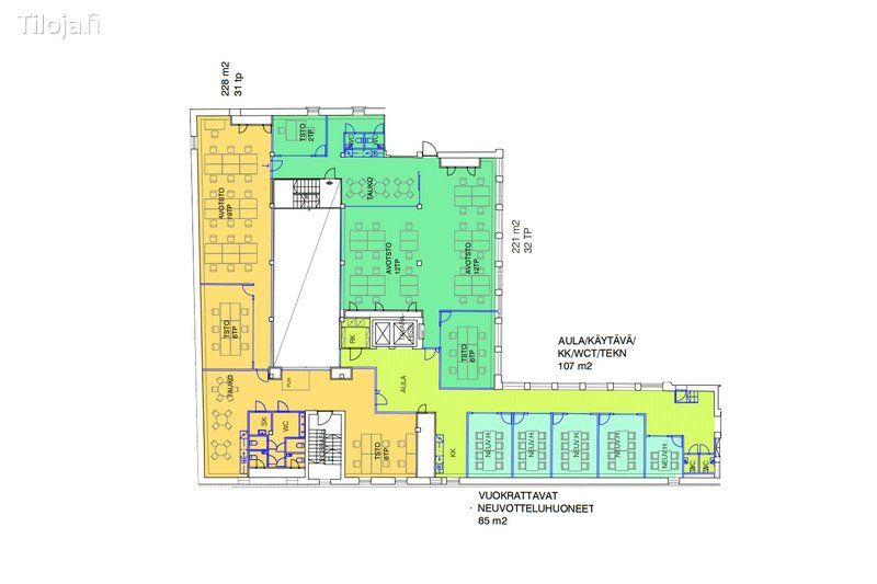
Moderni ja toimiva 221m2 kolmannen kerroksen toimistotila erinomaisella sijainnilla.
Avara kokonaisuus tarjoaa tehokkaan yhdistelmän avotilaa, neuvotteluhuoneita sekä viihtyisän atriumpihan, joka tuo tilaan luonnonvaloa ja lisää tilan avaruuden tuntua. Pohjaratkaisu soveltuu hyvin nykyaikaiseen työskentelyyn ja tiimityöhön.
Tilassa on oma keittiö sekä wc-tilat, jotka tukevat sujuvaa arkea ja työskentelymukavuutta.
Kiinteistö sijaitsee keskeisellä paikalla lähellä keskustan palveluita, ja saavutettavuus on erinomainen. Yliopiston metroasema sijaitsee aivan vieressä, mikä tekee liikkumisesta helppoa niin henkilöstölle kuin asiakkaille.
Tämä tila tarjoaa viihtyisän ja toimivan työympäristön yritykselle, joka arvostaa keskeistä sijaintia ja sujuvaa arkea.
Kiinteistössä on oma pysäköintihalli, jossa on 16 autopaikkaa. Talon edessä on maksullisia kadunvarsipysäköintipaikkoja ja EuroPark P-Kluuvi -pysäköintilaitoksen lähin sisäänkäynti on alle 2 min kävelymatkan päässä.
Vuokraan lisätään alv + kulut.
Ota yhteyttä ja kysy lisää!
Masa Hakala
masa.hakala@blanckiinteisto.com
+358 40 964 2482
www.blanctoimitilat.fi
