Vuokrataan toimistotilat - Helsinki
Laippatie 4, Roihuvuori, 00880 Helsinki #10863513
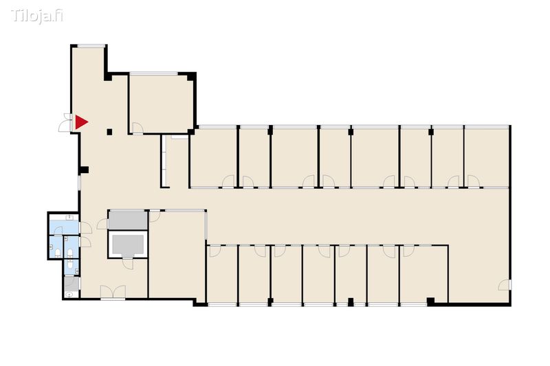
Tila on tällä hetkellä huoneisiin jaettu toimistotila, muuta se voidaan helposti muokata väliseinämuutoksin esimerkiksi avotilaksi tai ryhmätyö- ja projektitiloja sisältäväksi kokonaisuudeksi. Tila on myös yhdistettävissä viereiseen tilaan, mikä lisää joustavuutta. Vuokra on kilpailukykyinen.
Laippatie 4 on Itä-Helsingin monipuolinen toimitilakiinteistö, joka tarjoaa joustavia ratkaisuita niin toimisto-, tuotanto- kuin liiketilanakin. Rakennuksessa on runsaasti tilaa ja muuntelumahdollisuuksia: eri kerroksissa on jaettavissa olevia tilakokonaisuuksia, tavarahissejä sekä lastausratkaisuja
Kiinteistö sijaitsee osoitteessa Laippatie 4 Roihupellon alueella, aivan keskeisellä paikalla Itäväylän varrella ja lähellä julkisia kulkuyhteyksiä. Kulkuyhteydet ovat erinomaiset – niin henkilöautolla kuin raide- ja bussiyhteyksillä – ja alue tarjoaa toimivasti palveluita yritysten arkeen. Tämä tekee kohteesta erinomaisen vaihtoehdon yrityksille, jotka haluavat monipuolisen ja hyvin saavutettavan tilan.
Me Croisettella autamme teitä löytämään teille parhaat tilat! Olemme puolueettomia asiantuntijoita ja tunnemme toimitilamarkkinat, talot sekä tilat vankalla kokemuksella. Meillä on välityksessä kaikki toimitilat ja tiedämme niiden alustavat vuokratasot.
Tehtävämme on tehdä toimitilahaustanne onnistunutta ja helppoa. Saamme palkkiomme kiinteistönomistajalta, joten sinulle palvelumme on täysin maksuton. Jos kiinnostuit, ota yhteyttä sähköpostitse osoitteeseen vuokraus@croisette.fi tai soita numeroon +358 4 00585857.
Croisette Real Estate Partner
Erottajankatu 5 A 6, 00130 Helsinki
Näytä puhelinnumero
+358 400 585 857
Croisette Vuokraus
Näytä puhelinnumero
+358400585857
