Vuokrataan liiketilat - Muurame
Kiinteistö Oy Muuramen Setäläntie 3, Setäläntie 3, Keskusta, 40950 Muurame #10863460
Muuramen kauppakeskittymä sijaitsee Muuramen keskustassa noin 13 kilometriä Jyväskylästä etelään. Jämsästä matkaa kertyy Muuramen kauppakeskukseen 40 kilometriä ja Tampereelta 130 kilometriä.
Muuramekeskuksena tunnettu kehittyvä kauppakeskittymä, jossa käy vuosittain jo yli 3 miljoonaa asiakasta. Asiakasvirran ankkureina toimivat Lidl, HalpaHalli ja Shell Helmisimpukka. Mm. K-Supermarket on Muuramen kauppakeskittymässä aivan lähinaapurina.
Muuramekeskuksen valtteja ovat toisaalta helppo asiointi ja saavutettavuus osana yli 10 000 asukkaan Muuramen keskustataajamaa ja toisaalta sijainti paraatipaikalla, vilkkaasti liikennöidyn valtatie 9:n varrella. Muuramen kohdalla valtatien liikennevirta on keskimäärin 16 500 ajoneuvoa vuorokaudessa. Asiakkaiden käytössä on runsaasti ilmaista parkkitilaa.
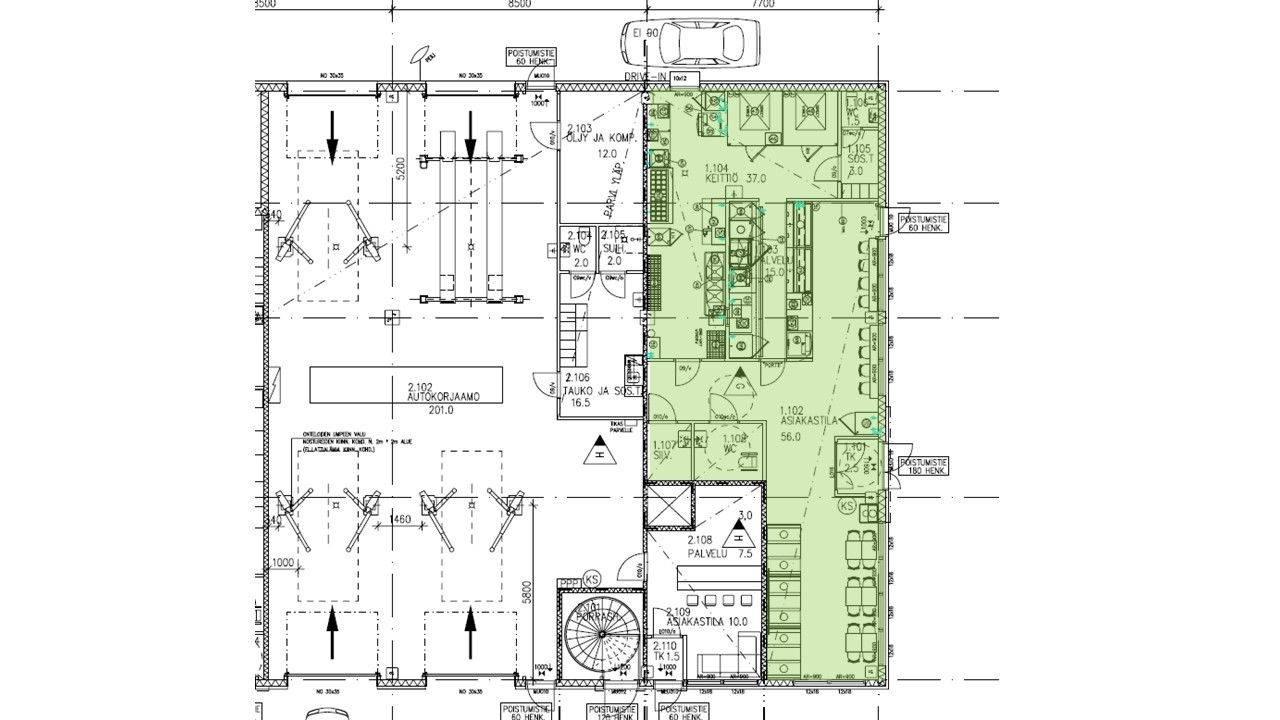
Katutasossa
Colliers Finland Oy
Colliers Finland Oy
Saija Ylinen
Leasing Manager
Näytä puhelinnumero
046-875 2828
