Videoesittely
Vuokrataan toimistotilat - Tampere
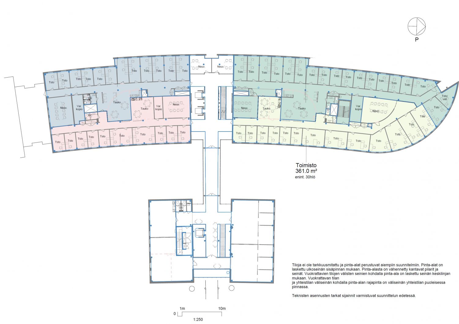
Pinni A, Kanslerinrinne 1, Keskusta, 33100 Tampere #10863420
Vuokrattavana ainutlaatuinen toimitila Tampereen ydinkeskustassa, viidennessä kerroksessa upea noin 361 m²:n tila. Tämä yrityksellesi erinomainen tila sijaitsee aivan Nokia Areenan vieressä, loistavien kulkuyhteyksien varrella – raitiovaunupysäkille ja rautatieasemalle on vain noin 500 metrin kävelymatka. Keskustan monipuoliset palvelut, kuten ravintolat, kahvilat ja kaupat, ovat aivan lähellä.
Osoite
Kanslerinrinne 1, 33100 Tampere
Tilatyyppi
Toimistotilaa
361 m2
Virtuaaliesittely
Vapautuu
Kysy
Kerros
5
Ota yhteyttä
Colliers Finland Oy
Colliers Finland Oy
Juuso Syvänen
Senior Leasing Manager
Näytä puhelinnumero
+358503557972
Pyydä lisätietoa
