Vuokrataan toimistotilat - Raahe
Kauppakeskus Masto, Ollinkalliontie 3, Koivuluoto, 92100 Raahe #10863404
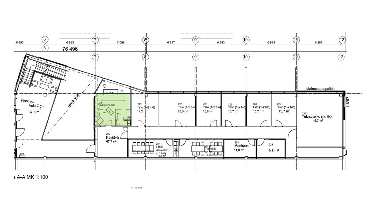
Vuokrattavana kiinteistön toisessa kerroksessa sijaitseva 29m2 toimisto-/liiketila.
Aiemmin tilassa on toiminut kauneushoitola.
Tervetuloa tutustumaan ja ideoimaan kuinka tämä tila palvelisi yrityksenne tarpeita!
SIJAINTI
Kauppakeskus Masto sijaitsee paraatipaikalla Raahen vilkkaasti liikennöidyn sisääntuloväylän Kokkolantien varrella. Arkisin Kokkolantietä käyttää keskimäärin yli 5 000 ajoneuvoa. Vastaavasti Vaasa-Oulu-valtatie 8:n ajoneuvomäärä on arkisin n. 10 000, mitattuna Mastoon johtavan Raahen liittymän kohdalla.
Koivuluodon kaupunginosa sijaitsee valtatien ja Raahen keskustan puolivälissä. Kauppakeskus Masto on kummastakin vain hieman alle kilometrin etäisyydellä. Kaikki Raahen kaupungin keskeiset liikuntapaikat, -palvelut ja -hallit ovat Koivuluodossa.
PALVELUT
Maston kaupallinen tarjonta on yhdistelmä erikoisliikkeitä ja hyvinvointipalveluja sekä ravintolaelämyksiä koko perheelle. Maston katutasossa toimii mm. Raahen suurin ja monipuolisin kuntokeskus Sisu, Musti ja Mirri sekä suosittu Pizzeria Manu. Lisäksi yläkerrassa on kymmenkunta vuokrattavaa toimitilaa, jotka ovat pääosin toimistokäytössä. Maston pihassa on runsaasti paikoitustilaa asiakkaille.
Maston lähinaapureina ovat muun muassa Raahen Ammattiopisto, Hesburger, Neste, Teboil sekä Raahen uimahalli, liikuntahalli ja jäähalli. Lähialue on luontainen asiointipaikka myös päivittäis- ja kulutustavarakaupan asiakasvirroille, ennen kaikkea viereisellä tontilla sijaitsevan Raahen K-Citymarketin ja kaupungin ainoan Alkon ansiosta.
Colliers Finland Oy
Colliers Finland Oy
Saija Ylinen
Leasing Manager
Näytä puhelinnumero
046-875 2828
