Vuokrataan toimistotilat - Kuopio
Koy Kuopion Volttikatu 4, Volttikatu 4, Savilahti, 70150 Kuopio #10863401
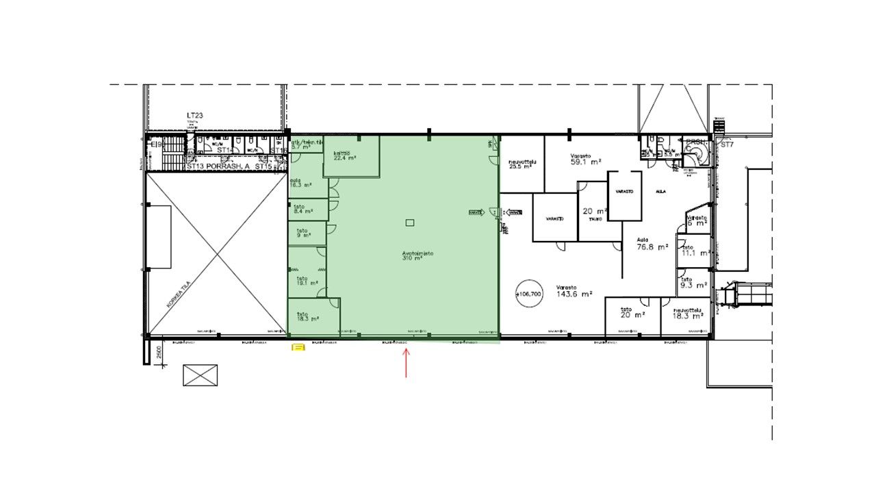
In Kuopio, Volttikatu 4 has a total of approx. 410 square meters of vacant office space.
The premises are located on the second floor.
Osoite
Volttikatu 4, 70150 Kuopio
Tilatyyppi
Toimistotilaa
410 m2
Kulkuyhteydet
Lastauslaituri
Vapautuu
Kysy
Kerros
2
Ota yhteyttä
Colliers Finland Oy
Colliers Finland Oy
Saija Ylinen
Leasing Manager
Näytä puhelinnumero
046-875 2828
Pyydä lisätietoa
