Vuokrataan toimistotilat - Oulu
Nuottasaarentie 5, Limingantulli, 90400 Oulu #10863332
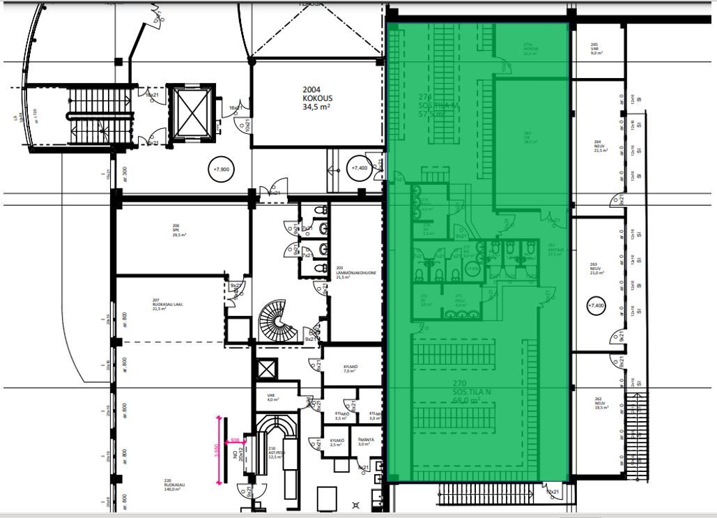
Vuokrattavana 2 krs sosiaalitilat Limingantullissa, Nuottasaarentie 5 Oulu kohteessa.
Osoite
Nuottasaarentie 5, 90400 Oulu
Tilatyyppi
Toimistotilaa
197 m2
Palvelut
Lounasravintola
Vapautuu
Kysy
Kerros
2
Ota yhteyttä
Colliers Finland Oy
Colliers Finland Oy
Saija Ylinen
Leasing Manager
Näytä puhelinnumero
046-875 2828
Pyydä lisätietoa
