Vuokrataan toimistotilat - Oulu
Kiinteistö Oy Voudintie 4, Voudintie 4, Limingantulli, 90400 Oulu #10863297
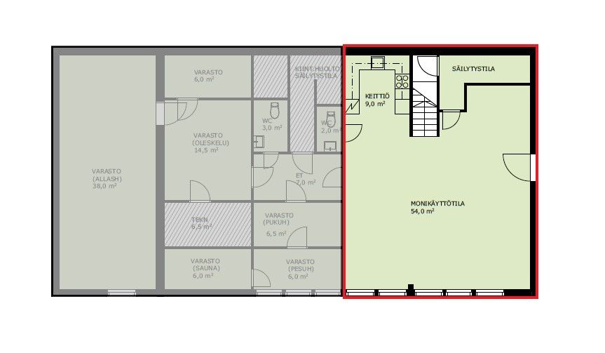
Vuokrataan siisti ikkunallinen kellarihuoneisto osoitteessa Voudintie 4. Tilassa on oma keittiö.
Tila soveltuu toimisto/varastokäyttöön.
Kohteessa toimii eri alan toimijoita ja käytössä on mm. yhteiset neuvottelutilat.
Voudintie 4 tarjoaa monipuolisia palveluita Limingantullin eloisalla kaupallisella alueella, Oulun sydämessä.
Kolmikerroksisessa kiinteistössä on laaja valikoima toimistotiloja yhden hengen toimistotiloista isompaan kokonaisuuteen.
Alueelta löytyy kattava valikoima palveluita suuren päivittäistavarakaupan valikoimista elektroniikka- ja urheiluliikkeisiin, jotka sijaitsevat kaikki muutaman minuutin kävelymatkan säteellä. Tämä tuo helpotusta arjen sujuvuuteen ja säästää kallisarvoista aikaa. Lounasta on tarjolla naapurikiinteistöissä.
Sijainti Limingantullissa takaa toimivat julkiset liikenneyhteydet ja helpon saavutettavuuden autolla. Paikallisliikenteen bussit kulkevat läheltä, rautatieasemalle on 2,6 km ja Oulun lentokenttäkin on alle 12 km päässä. Voudintie on näin ollen hyvä vaihtoehto yrityksesi toimipaikaksi.
Colliers Finland Oy
Colliers Finland Oy
Saija Ylinen
Leasing Manager
Näytä puhelinnumero
046-875 2828
