Vuokrataan toimistotilat - Kuopio
Kiinteistö Oy Kuopion Leväsentie 5, Leväsentie 5, Levänen, 70700 Kuopio #10863290
Toimistotilaa vuokrattavana Leväsentiellä!
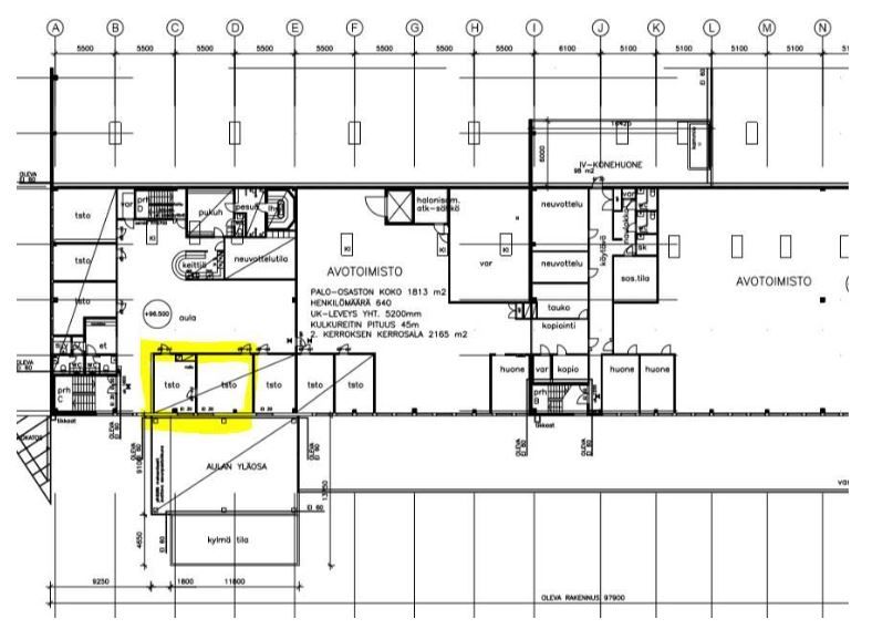
Leväsentien liikekeskittymä sijaitsee hyvien kulkuyhteyksien varrella, ja pihassa on erinomaiset asiakaspysäköintimahdollisuudet. Vapaana oleva 47m2 toimistotila sijaitsee kiinteistön toisessa kerroksessa. Ota yhteyttä, niin keskustellaan, kuinka tila palvelisi sinun yrityksesi tarpeita!
SIJAINTI
Kiinteistö Oy Kuopion Leväsentie 5 sijaitsee vain 10 minuutin ajomatkan päässä Kuopion keskustasta. Myös julkisilla kulkuvälineillä pääsee kätevästi Leväsentielle.
KIINTEISTÖN JA LÄHIALUEEN PALVELUT
Leväsentien kiinteistössä toimii tällä hetkellä suosittu tavaratalo Puuilo sekä Metro-pikatukku. Tien toisella puolella toimivassa kauppakeskussa Hermanissa toimivat K-Rauta, Rusta sekä Stadium Outlet. Alueella on myös paljon huonekaluliikkeitä, esimerkiksi Masku ja Jysk.
Colliers Finland Oy
Colliers Finland Oy
Saija Ylinen
Leasing Manager
Näytä puhelinnumero
046-875 2828
