Vuokrataan toimistotilat - Helsinki
Elimäenkatu 9, Vallila, 00510 Helsinki #10863216
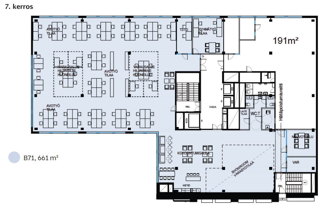
Vuokrataan seuraavalle vuokralaiselle remontoitavaa toimistotilaa uudistetusta Vallilan Kravattitehtaasta. Ilmoituksen kuvat yleiskuvia kiinteistön tiloista.
Kiinteistö on saneerattu kokonaisuudessaan vastaamaan tämän päivän toimistokäyttäjien tarpeita. Talossa hyvät palvelut vuokralaisille, kuten aulapalvelu, erikseen vuokrattavia neuvottelutiloja ja tasokas lounasravintola. Kiinteistöstä löytyy myös työmatkapyöräilijöille suihkutilat ja kuivaushuone vaatteille, lainapyöriä vuokralaisille sekä pysäköintipaikkoja ja sähköautojen latauspisteitä. Vallilaan pääsee kulkemaan kätevästi myös bussilla tai raitiovaunulla.
Lisätietoja soita 020 730 4530 tai info@repoint.fi. Palvelumme on tilanhakijalle ilmainen.
Repoint Toimitilat Oy
Itälahdenkatu 22 B, 00210 Helsinki
Näytä puhelinnumero
020 730 4530
Lisätietoja soita Näytä puhelinnumero 020 730 4530 tai info@repoint.fi
https://repoint.fi/