Vuokrataan toimistotilat - Oulu
Automaatiotie 1, 90460 Oulu #10863161
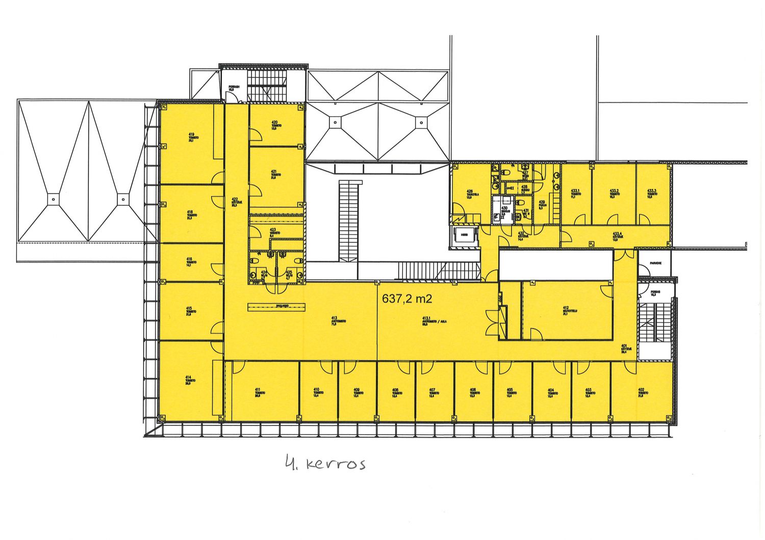
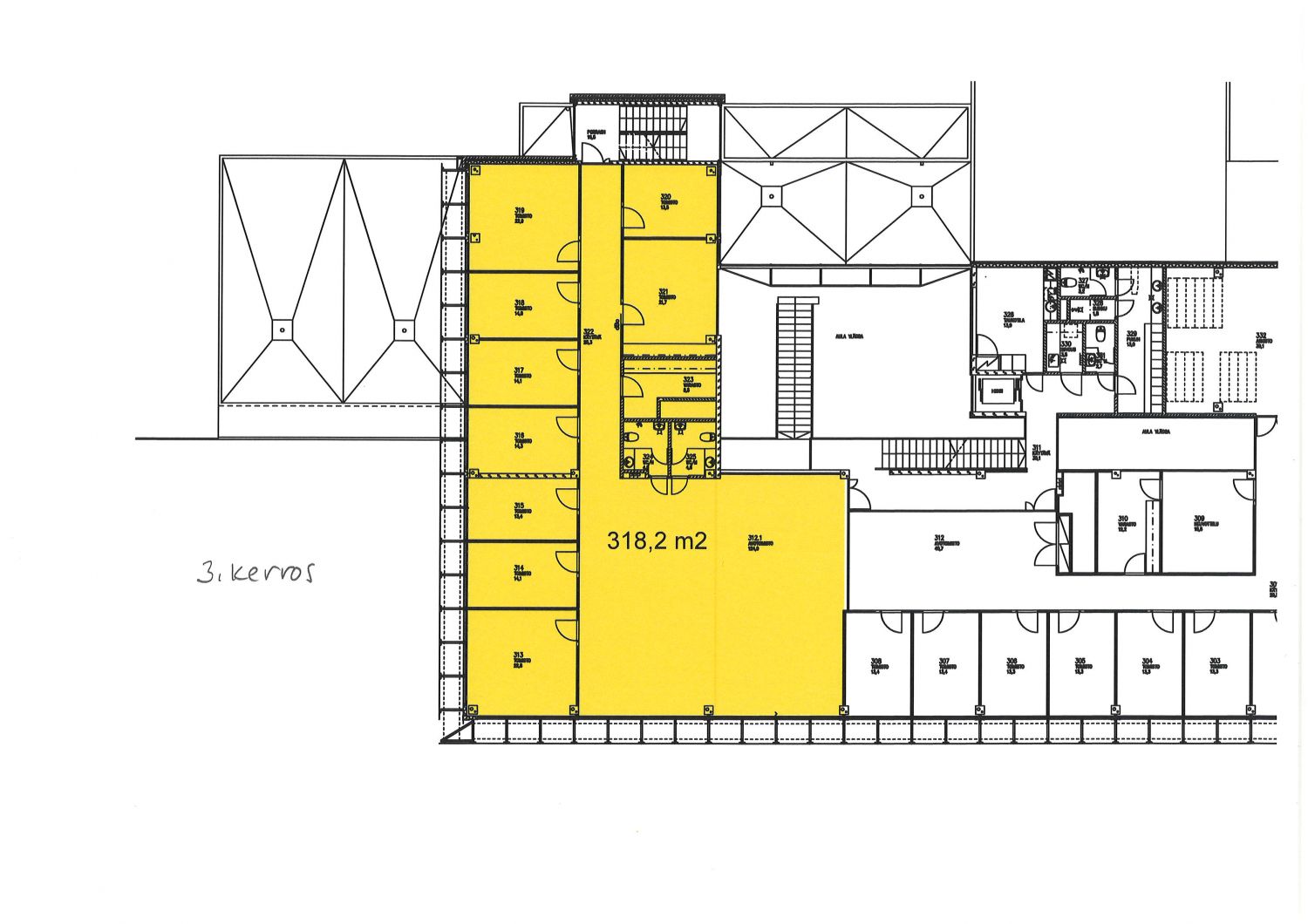
Vuokrataan aivan Oulun lentokentän kupeesta 2 hyvä tasoista toimistohuoneistoa!
Technology Park Oulu on tyylikäs, moderni ja monipuolinen toimisto- ja tuotantotilakonsepti Oulun lentokentän vieressä. Kohteen laaja palveluvalikoima takaa pääkonttoritason palvelukokemuksen.
Technology Parkin asiakkaita ja vuokralaisia palvelevat aulapalvelu sekä laadukas lounasravintola catering-palveluineen. Tiloista löytyy puitteet erilaisille kokouksille ja tilaisuuksille moderneista neuvotteluhuoneista luksusta henkivään saunaosastoon.
Näkyvällä paikalla
Jaettavissa
Pohjois-Suomen Toimitilat Oy
Harjapäänkatu 33, 90400 Oulu
Pekka Valkola
Näytä puhelinnumero
044 311 0555
