Vuokrataan toimistotilat, varastotilat, muut tilat - Vantaa
Meiramitie 3, Koivuhaka, 01300 Vantaa #10863093
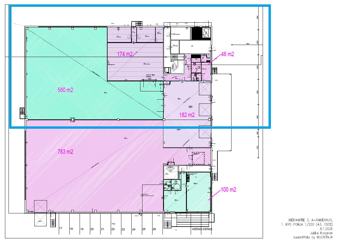
Meiramitie 3 - A-talo - Varasto + toimisto yht. 873 m²
Osoite
Meiramitie 3, 01300 Vantaa
Tilatyyppi
Toimistotilaa
174 m2
Varastotilaa
560 m2
Muuta tilaa
139 m2
Yhteensä
873 m2
Pohjapiirros
Kiinteistö
Vuokrattavana toimiva ja nykyaikainen 1. kerroksen varastokokonaisuus A-talossa. Kokonaispinta-ala on 873 m², ja tila tarjoaa tehokkaan yhdistelmän varastointia, toimistoa ja sosiaalitiloja sujuvaa päivittäistä toimintaa varten.
560 m² varasto
174 m² toimisto
48 m² sosiaalitilat
91 m² osuus yhteisestä lastausalueesta
Varasto on 8 metriä korkeaa tilaa, mikä mahdollistaa tehokkaan hyllytyksen ja tilankäytön. Lattian kantavuus soveltuu raskaaseen käyttöön, pistekuorma 5 t ja tasaisen kuorma 3 t. Tilan toimivuutta ja logistiikan sujuvuutta tukevat lastauslaituri sekä nosto-ovi, jotka tekevät tavarankäsittelystä tehokasta ja vaivatonta.
STC Meiramitie
Kiinteistössä on tarjolla monipuolisia ja muunneltavia toimitiloja eri koko- ja käyttötarpeisiin. Tilat soveltuvat niin toimisto-, varasto- kuin tuotantokäyttöön, ja niitä voidaan räätälöidä vuokralaisen tarpeiden mukaan.
Sijainti
STC Meiramitie sijaitsee erinomaisella paikalla Vantaan Koivuhaassa, sujuvien liikenneyhteyksien varrella, Helsinki-Vantaan lentokentän läheisyydessä. Kiinteistö on helposti saavutettavissa niin omalla autolla kuin julkisilla kulkuvälineillä, ja sen sijainti tarjoaa nopeat yhteydet pääväylille sekä pääkaupunkiseudun keskeisiin yritysalueisiin. Alue soveltuu erinomaisesti yrityksille, jotka arvostavat tehokasta logistiikkaa ja helppoa saavutettavuutta henkilöstölle ja asiakkaille.
Palvelut
Kiinteistön pihalla on hyvät pysäköintimahdollisuudet, ja lastaus- sekä huoltoyhteydet tukevat sujuvaa arkea. Lähiympäristöstä löytyy kattavat arjen palvelut, kuten lounasravintoloita ja muita yritystoimintaa tukevia palveluja.
Vastuullisuus
STC Meiramitien kiinteistöä kehitetään vastuullisesti ja pitkäjänteisesti. Energiatehokkuus, tilojen kestävä käyttö ja hyvä sisäympäristö ovat keskiössä kiinteistön ylläpidossa. Tavoitteena on tarjota vuokralaisille toimivat, turvalliset ja viihtyisät tilat, jotka tukevat yritysten vastuullisuustavoitteita ja kestävää liiketoimintaa.
Ota yhteyttä
Kiinnostuitko? Ota yhteyttä ja tule tutustumaan!
Toimitilavälityspalvelumme on tilanhakijalle maksuton.
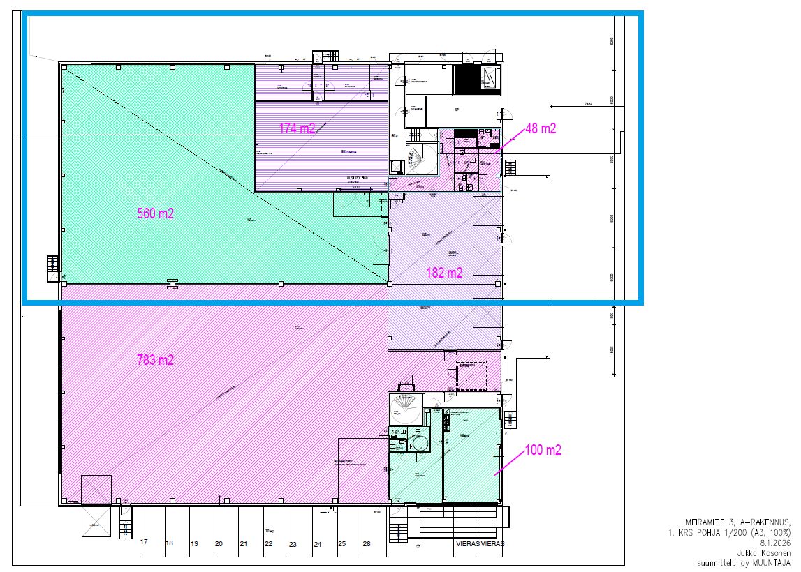
560 m² varasto
174 m² toimisto
48 m² sosiaalitilat
91 m² osuus yhteisestä lastausalueesta
Varasto on 8 metriä korkeaa tilaa, mikä mahdollistaa tehokkaan hyllytyksen ja tilankäytön. Lattian kantavuus soveltuu raskaaseen käyttöön, pistekuorma 5 t ja tasaisen kuorma 3 t. Tilan toimivuutta ja logistiikan sujuvuutta tukevat lastauslaituri sekä nosto-ovi, jotka tekevät tavarankäsittelystä tehokasta ja vaivatonta.
STC Meiramitie
Kiinteistössä on tarjolla monipuolisia ja muunneltavia toimitiloja eri koko- ja käyttötarpeisiin. Tilat soveltuvat niin toimisto-, varasto- kuin tuotantokäyttöön, ja niitä voidaan räätälöidä vuokralaisen tarpeiden mukaan.
Sijainti
STC Meiramitie sijaitsee erinomaisella paikalla Vantaan Koivuhaassa, sujuvien liikenneyhteyksien varrella, Helsinki-Vantaan lentokentän läheisyydessä. Kiinteistö on helposti saavutettavissa niin omalla autolla kuin julkisilla kulkuvälineillä, ja sen sijainti tarjoaa nopeat yhteydet pääväylille sekä pääkaupunkiseudun keskeisiin yritysalueisiin. Alue soveltuu erinomaisesti yrityksille, jotka arvostavat tehokasta logistiikkaa ja helppoa saavutettavuutta henkilöstölle ja asiakkaille.
Palvelut
Kiinteistön pihalla on hyvät pysäköintimahdollisuudet, ja lastaus- sekä huoltoyhteydet tukevat sujuvaa arkea. Lähiympäristöstä löytyy kattavat arjen palvelut, kuten lounasravintoloita ja muita yritystoimintaa tukevia palveluja.
Vastuullisuus
STC Meiramitien kiinteistöä kehitetään vastuullisesti ja pitkäjänteisesti. Energiatehokkuus, tilojen kestävä käyttö ja hyvä sisäympäristö ovat keskiössä kiinteistön ylläpidossa. Tavoitteena on tarjota vuokralaisille toimivat, turvalliset ja viihtyisät tilat, jotka tukevat yritysten vastuullisuustavoitteita ja kestävää liiketoimintaa.
Ota yhteyttä
Kiinnostuitko? Ota yhteyttä ja tule tutustumaan!
Toimitilavälityspalvelumme on tilanhakijalle maksuton.
Vapautuu
Kysy
Kerros
1
Ota yhteyttä
Logistila Oy
Kylätie 11-13, 00320 HELSINKI
Karoliina Turppo
Näytä puhelinnumero
050 345 3258
Pyydä lisätietoa
