Vuokrataan toimistotilat, varastotilat - Vantaa
Meiramitie 3, Koivuhaka, 01300 Vantaa #10863092
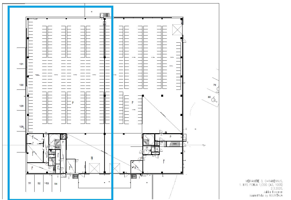
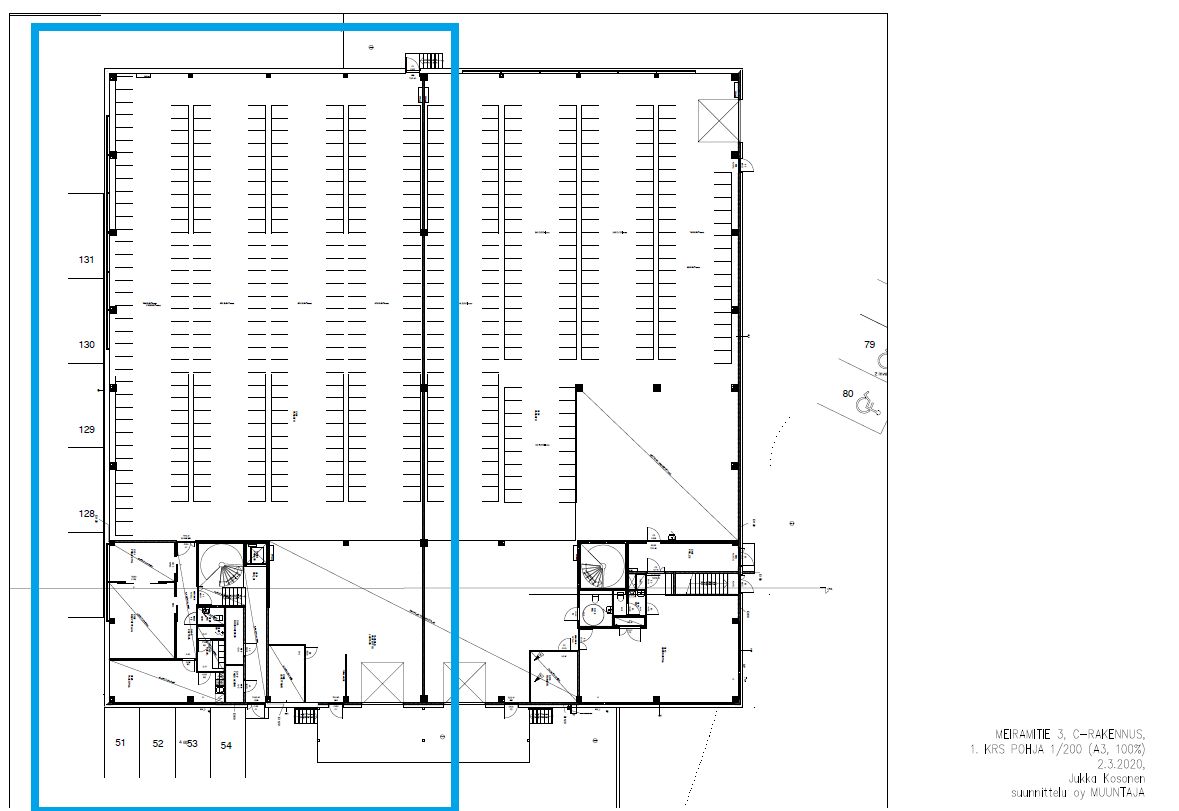
Meiramitie 3 - C-talo - Varasto 860 m² + toimisto 80 m²
Osoite
Meiramitie 3, 01300 Vantaa
Tilatyyppi
Toimistotilaa
80 m2
Varastotilaa
860 m2
Yhteensä
940 m2
Pohjapiirros
Kiinteistö
Vuokrattavana monipuolinen ja nykyaikainen 1. kerroksen varasto- ja toimistokokonaisuus C-talossa. Kokonaispinta-ala on 940 m², josta 860 m² on tehokasta varastotilaa ja 80 m² siistiä toimistotilaa, mikä tekee kokonaisuudesta toimivan ratkaisun esimerkiksi logistiikka-, tukku- tai maahantuontitoimintaan.
Varastotilan ominaisuudet
740 m² varastotilasta 8 metriä korkeaa, jonka lattian kantavuus on: pistekuorma 5 t, tasainen kuorma 3 t
120 m² varastotilaa noin 4 metriä korkeaa tilaa, jonka lattian kantavuus yhdessä lastauslaiturin kanssa on pistekuorman osalta 3 t ja tasaisen kuorman osalta 10 t
lastauslaituri
nosto-ovi
Tila vapautuu sopimuksen mukaan ja on joustavasti otettavissa käyttöön yrityksen tarpeiden mukaisesti.
STC Meiramitie
Kiinteistössä on tarjolla monipuolisia ja muunneltavia toimitiloja eri koko- ja käyttötarpeisiin. Tilat soveltuvat niin toimisto-, varasto- kuin tuotantokäyttöön, ja niitä voidaan räätälöidä vuokralaisen tarpeiden mukaan.
Sijainti
STC Meiramitie sijaitsee erinomaisella paikalla Vantaan Koivuhaassa, sujuvien liikenneyhteyksien varrella, Helsinki-Vantaan lentokentän läheisyydessä. Kiinteistö on helposti saavutettavissa niin omalla autolla kuin julkisilla kulkuvälineillä, ja sen sijainti tarjoaa nopeat yhteydet pääväylille sekä pääkaupunkiseudun keskeisiin yritysalueisiin. Alue soveltuu erinomaisesti yrityksille, jotka arvostavat tehokasta logistiikkaa ja helppoa saavutettavuutta henkilöstölle ja asiakkaille.
Palvelut
Kiinteistön pihalla on hyvät pysäköintimahdollisuudet, ja lastaus- sekä huoltoyhteydet tukevat sujuvaa arkea. Lähiympäristöstä löytyy kattavat arjen palvelut, kuten lounasravintoloita ja muita yritystoimintaa tukevia palveluja.
Vastuullisuus
STC Meiramitien kiinteistöä kehitetään vastuullisesti ja pitkäjänteisesti. Energiatehokkuus, tilojen kestävä käyttö ja hyvä sisäympäristö ovat keskiössä kiinteistön ylläpidossa. Tavoitteena on tarjota vuokralaisille toimivat, turvalliset ja viihtyisät tilat, jotka tukevat yritysten vastuullisuustavoitteita ja kestävää liiketoimintaa.
Ota yhteyttä
Kiinnostuitko? Ota yhteyttä ja tule tutustumaan!
Toimitilavälityspalvelumme on tilanhakijalle maksuton.
Varastotilan ominaisuudet
740 m² varastotilasta 8 metriä korkeaa, jonka lattian kantavuus on: pistekuorma 5 t, tasainen kuorma 3 t
120 m² varastotilaa noin 4 metriä korkeaa tilaa, jonka lattian kantavuus yhdessä lastauslaiturin kanssa on pistekuorman osalta 3 t ja tasaisen kuorman osalta 10 t
lastauslaituri
nosto-ovi
Tila vapautuu sopimuksen mukaan ja on joustavasti otettavissa käyttöön yrityksen tarpeiden mukaisesti.
STC Meiramitie
Kiinteistössä on tarjolla monipuolisia ja muunneltavia toimitiloja eri koko- ja käyttötarpeisiin. Tilat soveltuvat niin toimisto-, varasto- kuin tuotantokäyttöön, ja niitä voidaan räätälöidä vuokralaisen tarpeiden mukaan.
Sijainti
STC Meiramitie sijaitsee erinomaisella paikalla Vantaan Koivuhaassa, sujuvien liikenneyhteyksien varrella, Helsinki-Vantaan lentokentän läheisyydessä. Kiinteistö on helposti saavutettavissa niin omalla autolla kuin julkisilla kulkuvälineillä, ja sen sijainti tarjoaa nopeat yhteydet pääväylille sekä pääkaupunkiseudun keskeisiin yritysalueisiin. Alue soveltuu erinomaisesti yrityksille, jotka arvostavat tehokasta logistiikkaa ja helppoa saavutettavuutta henkilöstölle ja asiakkaille.
Palvelut
Kiinteistön pihalla on hyvät pysäköintimahdollisuudet, ja lastaus- sekä huoltoyhteydet tukevat sujuvaa arkea. Lähiympäristöstä löytyy kattavat arjen palvelut, kuten lounasravintoloita ja muita yritystoimintaa tukevia palveluja.
Vastuullisuus
STC Meiramitien kiinteistöä kehitetään vastuullisesti ja pitkäjänteisesti. Energiatehokkuus, tilojen kestävä käyttö ja hyvä sisäympäristö ovat keskiössä kiinteistön ylläpidossa. Tavoitteena on tarjota vuokralaisille toimivat, turvalliset ja viihtyisät tilat, jotka tukevat yritysten vastuullisuustavoitteita ja kestävää liiketoimintaa.
Ota yhteyttä
Kiinnostuitko? Ota yhteyttä ja tule tutustumaan!
Toimitilavälityspalvelumme on tilanhakijalle maksuton.
Vapautuu
Kysy
Kerros
1
Ota yhteyttä
Logistila Oy
Kylätie 11-13, 00320 HELSINKI
Karoliina Turppo
Näytä puhelinnumero
050 345 3258
Pyydä lisätietoa
