Vuokrataan toimistotilat - Oulu
Elektroniikkatie 3, Linnanmaa, 90590 Oulu #10863089
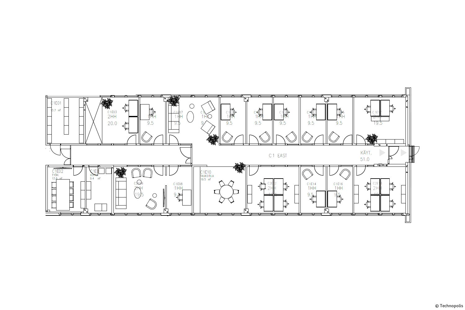
Etsitkö tilavaa ja muunneltavissa olevaa toimistotilaa, joka tukee yrityksesi kasvua ja päivittäistä sujuvuutta? Tämä 435 m² toimistotila Technopolis Elektroniikkatie 3-5:ssä tarjoaa erinomaiset puitteet modernille työympäristölle.
Toimisto sijaitsee 1. kerroksessa aivan yhteisen, ison taukotilan läheisyydessä, joka tuo lisämukavuutta arkeen. Tiloissa on yksittäisiä huoneita ja tiimitiloja, jotka mahdollistavat joustavan työskentelyn. Lisäksi neuvottelutila luo erinomaiset puitteet asiakastapaamisiin ja tiimipalavereihin.
Tilan läheisyydessä on myös lämmintä varastotilaa, joka täydentää toimitilan toimivuutta ja käytännöllisyyttä. Kiinteistössä on runsaasti pysäköintitilaa, joten pysäköinti on vaivatonta niin työntekijöille kuin vierailijoillekin.
Technopolis
Elektroniikkatie 8 FIN-90590 Oulu
Näytä puhelinnumero
046 712 0000
Maija Väyrynen
Näytä puhelinnumero
040 584 4747
Myynti Technopolis Oulu
Technopolis on työympäristöjen asiantuntija. Tarjoamme joustavia ja tehokkaita toimitiloja sekä niihin liittyviä palveluita. Hoidamme kaiken työtilojen suunnittelusta sekä aula- ja kokouspalveluista ravintoloihin ja siivoukseen. Asiakaskokemus ja sen kehittäminen ovat toimintamme ytimessä. Meillä on 14 kampusta, joissa toimii 1200 asiakasyritystä ja niiden yli 30 000 työntekijää neljässä maassa Euroopassa.
https://technopolisglobal.com/fi