Vuokrataan tuotantotilat, varastotilat - Espoo
Sierakiventie 8-10, Kauklahti, 02780 Espoo #10863085
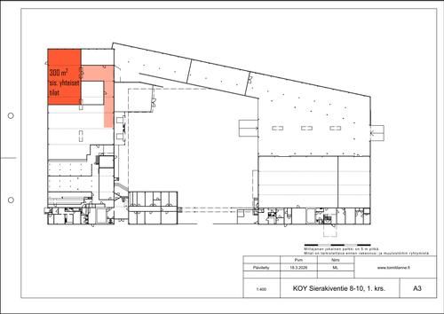
Vuokrataan Espoon Kauklahdesta 300 m² varastotila. Vapaa korkeus on 5 m. Kuormalavahyllyt valmiina. Nosto-ovet ja lastauslaituri. Sisäänajomahdollisuus pakettiautolle. Tarvittaessa tiloja voi käyttää myös tuotantoon.
Kysy rohkeasti lisätietoja ja sovitaan käynti kohteella!
Osoite
Sierakiventie 8-10, 02780 Espoo
Tilatyyppi
Tuotantotilaa
300 m2
Varastotilaa
300 m2
Yhteensä
300 m2
Kiinteistö
Sierakiventie 8-10
Palvelut
Asiakaspysäköinti ja lastauslaituri.
Vapautuu
Kysy
Kerros
1
Ota yhteyttä
Hausala Oy
Erkkilänkatu 11, 33100 Tampere
Näytä puhelinnumero
050 472 7077
Mikko Ranta
Näytä puhelinnumero
050 360 6500
Mika Savikko
Näytä puhelinnumero
050 472 7077
Pyydä lisätietoa
