Vuokrataan toimistotilat - Helsinki
Valokaari 10, Suutarila, 00750 Helsinki #10863082
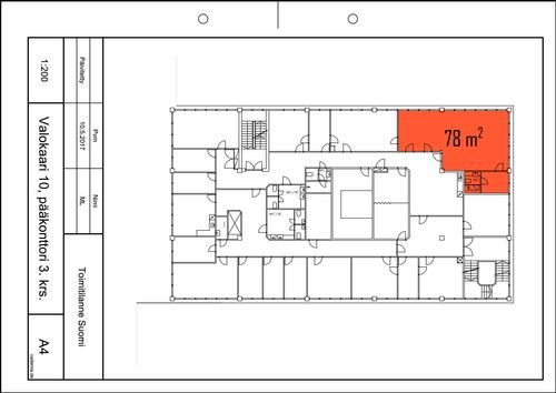
Vuokrataan Helsingin Suutarilasta pääkonttorirakennuksen ylimmästä kolmannesta kerroksesta noin 78 m²:n kokoinen valoisa toimistotila. Toimisto on avointa tilaa, vanha teollisuuspatruunan kulmahuone, jossa oma mukavuuslaitos. Heti vieressä on yhteiskäytössä avara kattoikkunallinen keittiö- ja oleskelutila.
Kysy rohkeasti lisätietoja ja sovitaan käynti kohteella!
Osoite
Valokaari 10, 00750 Helsinki
Tilatyyppi
Toimistotilaa
78 m2
Kiinteistö
Valokaari 10
Palvelut
Asiakaspysäköinti
Vapautuu
Kysy
Kerros
3
Ota yhteyttä
Hausala Oy
Erkkilänkatu 11, 33100 Tampere
Näytä puhelinnumero
050 472 7077
Matti Pöyhiä
Näytä puhelinnumero
040 722 6650
Mika Savikko
Näytä puhelinnumero
050 472 7077
Pyydä lisätietoa
