Vuokrataan tuotantotilat, varastotilat - Helsinki
Valokaari 10, Suutarila, 00750 Helsinki #10863081
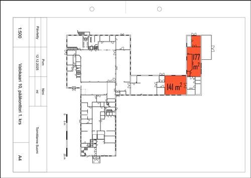
Vuokrataan Helsingin Suutarilasta katutason 318 m² varastotilat. Varastotila koostuu kahdesta tilasta, jotka voidaan vuokrata yhdessä tai erikseen.
Selkeät varastotilat 141 m² ja 177 m², jonne lastausovi (leveys 2,63 m, korkeus 2,42 m) sisäpihan puolella.
Myös viereinen aidattu ulkovarastotila 84 m² vapautuu sopimuksen mukaan.
Kysy rohkeasti lisätietoja ja sovitaan käynti kohteella!
Osoite
Valokaari 10, 00750 Helsinki
Tilatyyppi
Tuotantotilaa
141 - 318 m2
Varastotilaa
141 - 318 m2
Yhteensä
141 - 318 m2
Tilajako
Jaettavissa
Kiinteistö
Valokaari 10
Palvelut
Asiakaspysäköinti
Vapautuu
Kysy
Katutasossa
Jaettavissa
Ota yhteyttä
Hausala Oy
Matti Pöyhiä
Näytä puhelinnumero
040 722 6650
Mika Savikko
Näytä puhelinnumero
050 472 7077
Pyydä lisätietoa
