Vuokrataan toimistotilat - Helsinki
The Middle, Runeberginkatu 5, Kamppi, 00100 Helsinki #10863041
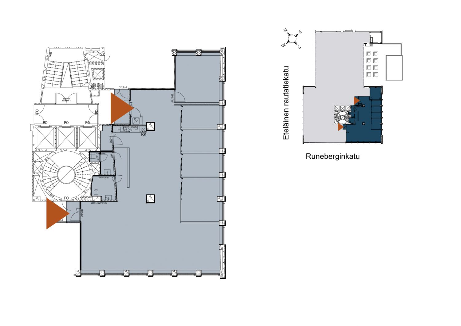
Siisti 209,5 m² toimisto Kampin Autotalokorttelissa
Osoite
Runeberginkatu 5, 00100 Helsinki
Tilatyyppi
Toimistotilaa
209,5 m2
Pohjapiirros
Kiinteistö
Moderni ja monipuolinen monitilatoimisto Helsingin Kampissa. Tämä toimisto tarjoaa erinomaiset puitteet niin pienille kuin suurillekin yrityksille. Toimisto on suunniteltu tukemaan erilaisia työskentelytapoja ja -tarpeita, ja se sisältää muun muassa:
Avoimet työtilat: Valoisat ja avarat tilat, jotka mahdollistavat joustavan työskentelyn.
Neuvotteluhuoneet: Useita eri kokoisia neuvotteluhuoneita, jotka soveltuvat niin pieniin palavereihin kuin suurempiin kokouksiin.
Hiljaiset työtilat: Erilliset tilat keskittymistä vaativaan työhön.
Yhteiset tilat: Mukavat ja viihtyisät taukotilat, joissa voi rentoutua ja verkostoitua kollegoiden kanssa.
Teknologia: Modernit IT-ratkaisut ja nopeat verkkoyhteydet.
The Middle on kolmesta kiinteistöstä koostuva maamerkki, jossa kaikki loksahtaa kohdalleen. Täällä työelämä ja moderni elämäntapa kohtaavat kokonaisen korttelin mitalla, keskellä kaupunkia. The Middlessä huippusijainti, yhteisöllisyys sekä työ ja vapaa-aika muodostavat uudenlaisen työelämäntavan – työ ei ole vain työtä, vaan osa hyvää elämää.
Korttelin kaikkia kiinteistöjä on peruskorjattu kattavasti 2010-luvulla vastaamaan tämän päivän työelämän tarpeita. Kiinteistöjen valoisat ja avarat toimitilat mahdollistavat erilaisten työympäristöjen rakentamisen.
The Middle -korttelin sijainti ei ole pelkkä piste kartalla, vaan mahdollistaja – luovuutta ruokkiva ympäristö sekä palveluiden ja yhteyksien verkosto kokoavat ihmiset jälleen yhteen.
Viereisellä tontilla mahdollinen uudisrakentaminen aikaisintaan alkaen 2026/27.
Kiinteistössä pysäköintihalli, pyöräilijöille pyöräparkit ja suihkutilat.
Avoimet työtilat: Valoisat ja avarat tilat, jotka mahdollistavat joustavan työskentelyn.
Neuvotteluhuoneet: Useita eri kokoisia neuvotteluhuoneita, jotka soveltuvat niin pieniin palavereihin kuin suurempiin kokouksiin.
Hiljaiset työtilat: Erilliset tilat keskittymistä vaativaan työhön.
Yhteiset tilat: Mukavat ja viihtyisät taukotilat, joissa voi rentoutua ja verkostoitua kollegoiden kanssa.
Teknologia: Modernit IT-ratkaisut ja nopeat verkkoyhteydet.
The Middle on kolmesta kiinteistöstä koostuva maamerkki, jossa kaikki loksahtaa kohdalleen. Täällä työelämä ja moderni elämäntapa kohtaavat kokonaisen korttelin mitalla, keskellä kaupunkia. The Middlessä huippusijainti, yhteisöllisyys sekä työ ja vapaa-aika muodostavat uudenlaisen työelämäntavan – työ ei ole vain työtä, vaan osa hyvää elämää.
Korttelin kaikkia kiinteistöjä on peruskorjattu kattavasti 2010-luvulla vastaamaan tämän päivän työelämän tarpeita. Kiinteistöjen valoisat ja avarat toimitilat mahdollistavat erilaisten työympäristöjen rakentamisen.
The Middle -korttelin sijainti ei ole pelkkä piste kartalla, vaan mahdollistaja – luovuutta ruokkiva ympäristö sekä palveluiden ja yhteyksien verkosto kokoavat ihmiset jälleen yhteen.
Viereisellä tontilla mahdollinen uudisrakentaminen aikaisintaan alkaen 2026/27.
Kiinteistössä pysäköintihalli, pyöräilijöille pyöräparkit ja suihkutilat.
Pysäköinti
Kiinteistössä oma parkkihalli.
Palvelut
Kampin keskuksen monipuoliset palvelut. Kiinteistössä on autohalli, pyöräparkki suihkuineen ja ravintolamaailma.
Kulkuyhteydet
Kampin metroasema ja linja-autoasema aivan vieressä.
Metroasema 100 m, Raitiovaunupysäkki alle 100 m, Bussipysäkki alle 100 m, Juna-asema 700 m, Lentoasema 16,6 km.
Metroasema 100 m, Raitiovaunupysäkki alle 100 m, Bussipysäkki alle 100 m, Juna-asema 700 m, Lentoasema 16,6 km.
Vapautuu
Heti
Rakennusvuosi
1958
Saneerausvuosi
2016
Kerros
4
Energiatehokkuusluokka
E2007
Näkyvällä paikalla
Hissi
Ota yhteyttä
ScanReal Oy LKV
Opus Business Park
Hitsaajankatu 24
00810 Helsinki
info@scanreal.fi
Puh:
Näytä puhelinnumero
020 730 8830
Sopivat toimitilat yhdellä otolla!
Kartoitamme toimitilatarpeesi ja etsimme yrityksellesi parhaiten sopivat vapaat toimitilat. Koska vuokranantajat maksavat palvelumme, on tämä yrityksellesi veloituksetonta.
OTA YHTEYTTÄ - SOVI NÄYTTÖ!
Kaikki kohteemme eivät ole netissä, kerro tilatarpeesi niin kartoitamme vaihtoehdot.
Palvelumme on tilanhakijalle ilmainen
Pyydä lisätietoa
