Vuokrataan toimistotilat - Helsinki
Elimäenkatu 17-19, Vallila, 00510 Helsinki #10863025
Modernia pientoimistotilaa Vallilassa.
Osoite
Elimäenkatu 17-19, 00510 Helsinki
Tilatyyppi
Toimistotilaa
48 m2
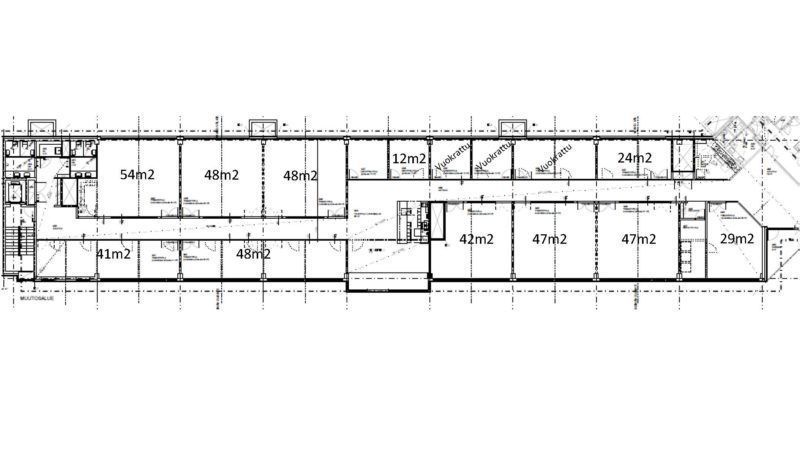
Pohjapiirros
Kiinteistö
Modernia pientoimistotilaa Vallilassa. Toimistoon kuuluu muiden pientoimistojen kanssa jaetut keittiö-, wc-, neuvottelu- ja oleskelutilat, sekä puhelinkoppien vapaa käyttöoikeus.
Vallin pientoimistokerroksesta löytyy ratkaisut eri tarpeisiin. Tarjolla on erikokoisia pientoimistoja.
Kiinteistössä on aulavastaanotto, erilliset kokoustilat, lounasravintola sekä poikkeuksellisen runsaasti pysäköintitilaa: 59 ulkopaikkaa ja 236 sisäpaikkaa. Lisäksi viereisellä tontilla sijaitsee yksityinen Q-parkin pysäköintilaitos, jossa on 700 hallipaikkaa.
Vallin pientoimistokerroksesta löytyy ratkaisut eri tarpeisiin. Tarjolla on erikokoisia pientoimistoja.
Kiinteistössä on aulavastaanotto, erilliset kokoustilat, lounasravintola sekä poikkeuksellisen runsaasti pysäköintitilaa: 59 ulkopaikkaa ja 236 sisäpaikkaa. Lisäksi viereisellä tontilla sijaitsee yksityinen Q-parkin pysäköintilaitos, jossa on 700 hallipaikkaa.
Ympäristö
Lähellä Sturenkatua ja Teollisuuskatua.
Pysäköinti
Runsaasti pysäköintitilaa: 59 ulkoparkkipaikkaa ja 236 sisäpaikkaa.
Kulkuyhteydet
Keskeisen sijainnin ansiosta hyvät kulkuyhteydet: juna, raitiovaunu, bussi.
Vapautuu
Heti
Rakennusvuosi
1999
Kerros
4 / 7
Energiatehokkuusluokka
Ei lain edellyttämää energiatodistusta
Näkyvällä paikalla
Hissi
Ota yhteyttä
ScanReal Oy LKV
Opus Business Park
Hitsaajankatu 24
00810 Helsinki
info@scanreal.fi
Puh:
Näytä puhelinnumero
020 730 8830
Sopivat toimitilat yhdellä otolla!
Kartoitamme toimitilatarpeesi ja etsimme yrityksellesi parhaiten sopivat vapaat toimitilat. Koska vuokranantajat maksavat palvelumme, on tämä yrityksellesi veloituksetonta.
OTA YHTEYTTÄ - SOVI NÄYTTÖ!
Kaikki kohteemme eivät ole netissä, kerro tilatarpeesi niin kartoitamme vaihtoehdot.
Palvelumme on tilanhakijalle ilmainen
Pyydä lisätietoa
