Vuokrataan toimistotilat - Helsinki
Kumpulantie 5, Vallila, 00520 Helsinki #10862996
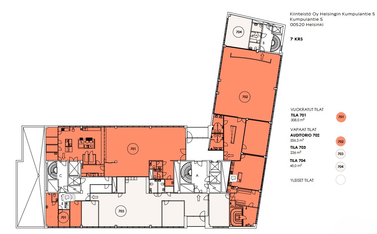
Vuokrataan 45 m2 toimistotila 7. kerroksessa. Vallilan Pikseli on toimistotalo joka sijaitsee keskeisellä paikalla Pasilassa. Kiinteistössä on lounasravintola, aulapalvelu, saunaosasto sekä neuvotteluhuoneita vuokrattavana.
Lisätietoja: p. 020 7290 710. Lisää kohteita osoitteessa premises.fi.
Kohteella ei ole lain edellyttämää energiatodistusta.Kerros: 7
Osoite
Kumpulantie 5, 00520 Helsinki
Tilatyyppi
Toimistotilaa
45 m2
Kulkuyhteydet
Erinomaiset julkiset liikenneyhteydet.
Ota yhteyttä
CRE PREMISES
Puh. Näytä puhelinnumero 020 7290 710
Vantaankoskentie 14
01670 VANTAA
Pyydä lisätietoa
