Vuokrataan - Helsinki
Itämerenkatu 21, Ruoholahti, 00180 Helsinki #10862968
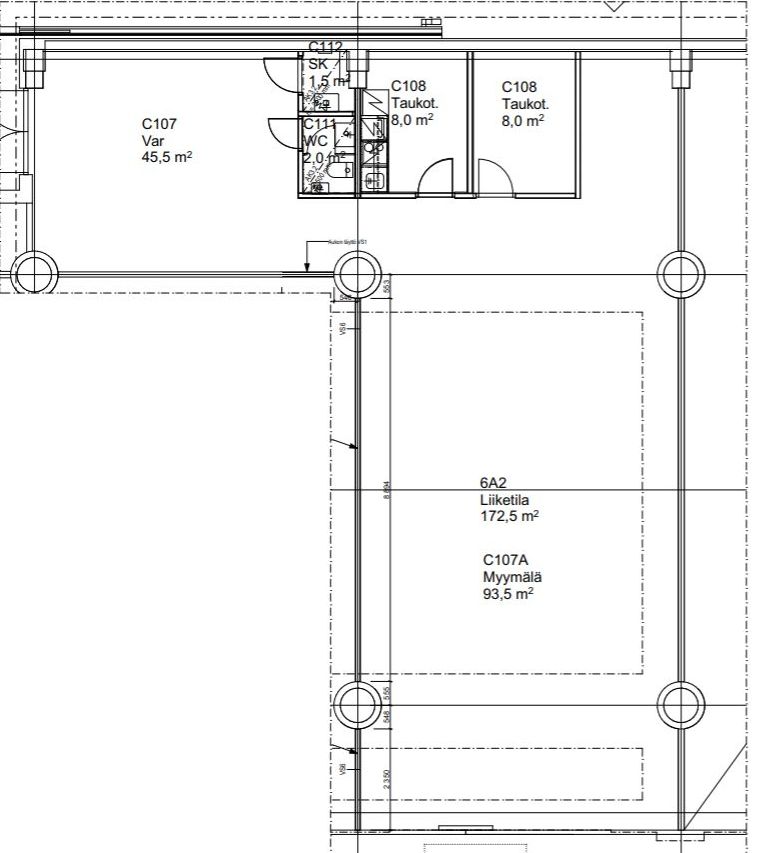
Kauppakeskus Ruohiksesta vuokrattavana katutason liiketila ( 172 m2) . Tila sijaitsee kauppakäytävällä. Tilaan kuuluu toimistohuone, minikeittiö ja wc. Tilasta on suora yhteys lastauslaiturille. Tila ei sovellu ravintolaksi.
Osoite
Itämerenkatu 21, 00180 Helsinki
Vapautuu
Kysy
Huoneiden lukumäärä
1
Energiatehokkuusluokka
Ei lain edellyttämää energiatodistusta
Ota yhteyttä
RHG Real Estate
Hämeenkatu 2 B20, 20500 Turku
Heli Reinberg
Näytä puhelinnumero
040 647 4900
Pyydä lisätietoa
