Vuokrataan toimistotilat - Helsinki
Kalevankatu 6, Kamppi, 00120 Helsinki #10862948
Vuokrattavana toimistotilaa arvokiinteistössä, erinomaisella paikalla Helsingin keskustassa.
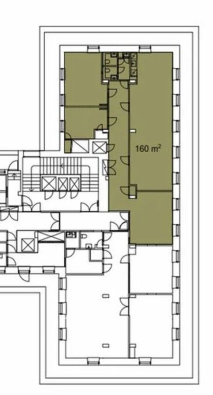
Tämä muuttovalmis 160 m² toimisto sijaitsee kiinteistön 6. kerroksessa. Toimistossa on erikokoisia työskentelyalueita sekä omat keittiö- ja wc-tilat.
Suomitalo koostuu vuonna 1911 valmistuneesta Lönnrotinkatu 5:sta, joka sijaitsee heti Vanhan kirkkopuiston vieressä ja 1938 valmistuneesta Kalevankatu 6:n toimitilakiinteistöstä. Alunperin tämä toimisto- ja liikekiinteistö valmistui Suomi-yhtiöiden pääkonttoriksi. Kalevankadun toimitilat ovat valoisia korkeiden ikkunoiden ansiosta. Tiloja on modernisoitu ja saneerattu vastaamaan nykypäivän laatutasoa. Keskeisen sijainnin vuoksi kiinteistöstä on loistavat kulkuyhteydet lukuisilla eri kulkuvälineillä.
Kysy lisää numerosta 044 723 4700 tai info@bref.fi. Palvelumme on tilanhakijoille ilmainen.
Hissi
Bureau Real Estate Finland Oy
Lars Sonckin kaari 16, 02600 Espoo
Näytä puhelinnumero
0447234700
Bureau Real Estate Finland Oy
https://www.bref.fi