Vuokrataan toimistotilat - ESPOO
TEKNIIKANTIE 4 B, OTANIEMI, 02150 ESPOO #10862925
Neljästä rakennuksesta koostuva Aallonharja-kiinteistö on vastikään uudistettu. Työtilat ovat toimivat ja aina muokattavissa käyttäjänsa tärpeisiin. Tällä persoonallisella toimistokohteella on mahdollisuus huolehtia omasta viljelyalueesta, kuntoilla, huoltaa polkupyörää tai lainata kiinteistön sähköpyöriä, saunoa kelosaunassa ja nauttia kattoterassista. Peruspalvelut ovat myös tasokkaat ja kiinteistöllä on aula, ravintola, kokoustiloja ja auditorio, parkkitilaa sekä vielä pop-up-toimistoja esim. projektitöihin.
Osoite
TEKNIIKANTIE 4 B, 02150 ESPOO
Tilatyyppi
Toimistotilaa
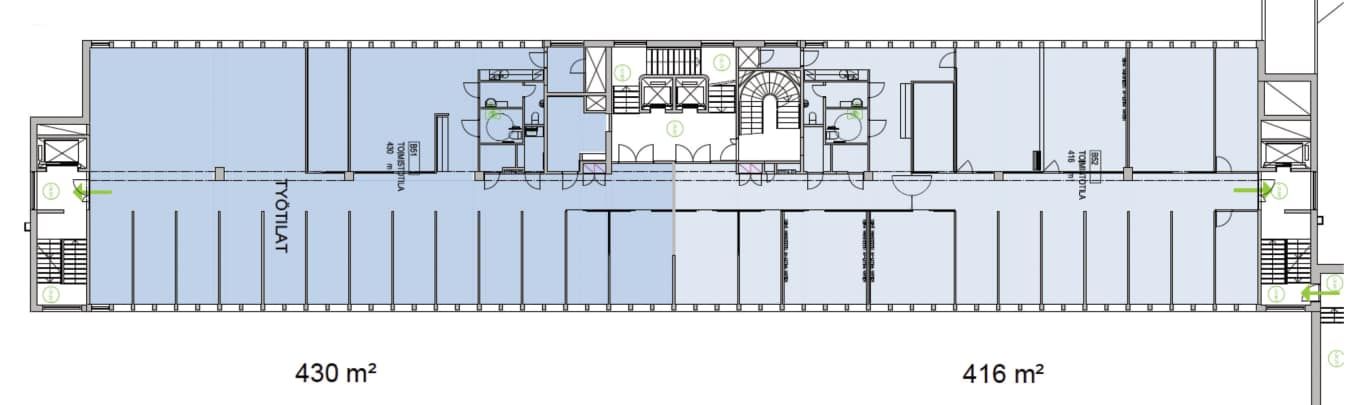
416 m2
Vapautuu
Heti vapaa
Ota yhteyttä
Pyydä lisätietoa
