Vuokrataan toimistotilat - HELSINKI
SÖRNÄISTEN RANTATIE 29, SÖRNÄINEN, 00580 HELSINKI #10862901
Kalasataman Kummeli on Sörnäisten Rantatien ja Vilhonvuorenkadun kulmassa sijaitseva kiinteistö, joka on uudistettu moderniksi toimistokohteeksi. Talossa on näyttävä sisääntulokerros, jossa aulapalvelu, vuokrattavia neuvotteluhuoneita ja tasokas lounasravintola, josta saa myös catering. Valoisat toimistotilat täyttävät vaativankin käyttäjän standardit. Kaikki Kalasataman ja Sörnäisten palvelut ovat lähellä, minkä lisäksi liikenneyhteydet ovat erinomaiset. Autoilijoille löytyy parkkipaikkoja omasta hallista.
Osoite
SÖRNÄISTEN RANTATIE 29, 00580 HELSINKI
Tilatyyppi
Toimistotilaa
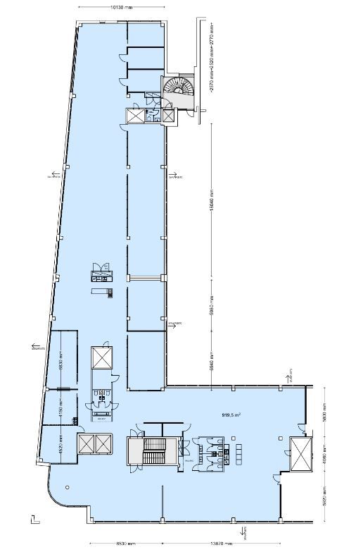
920 m2
Vapautuu
Heti vapaa
Ota yhteyttä
Pyydä lisätietoa
