Vuokrataan toimistotilat - HELSINKI
MALMINKATU 28, KAMPPI, 00180 HELSINKI #10862890
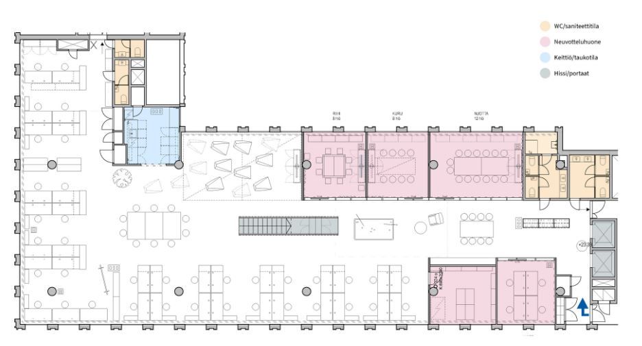
Malminkatu 28 on 70-luvun arkkitehtuuria edustava toimistokiinteistö hyvällä paikalla Helsingin Kampissa. Tilat ovat valoisaa ja muunneltavaa avotoimistoa. Kiinteistöstä löytyy parkkipaikkoja, pyöräpaikkoja ja sosiaalitilat. Rakennuksella on BREEAM in-use -ympäristösertifikaatti arvosanalla Excellent.
Osoite
MALMINKATU 28, 00180 HELSINKI
Tilatyyppi
Toimistotilaa
525 m2
Vapautuu
Heti vapaa
Ota yhteyttä
Pyydä lisätietoa
