Vuokrataan toimistotilat - HELSINKI
LEMUNTIE 7, VALLILA, 00510 HELSINKI #10862882
Tyylikkäästi uudistettu teollisuus- ja toimistokiinteistö Akseli & Elina koostuu kahdesta rakennuksesta Lemuntie 3-5 ja Lemuntie 7. Entiset linja-autokoritehdas ja radioverstas ovat herätetty uuteen eloon ja tarjoavat nyt laadukkaita toimistoja. Kohde on ollut suosittu design-toimialan keskuudessa showroomien ja teollisuushenkisyyden ansiosta, mutta tilat soveltuvat monipuolisesti erilaisen yritysten käyttöön. Talossa on ravintola-kahvila kesäterassilla sekä vuokrattavia sähköpyöriä.
Osoite
LEMUNTIE 7, 00510 HELSINKI
Tilatyyppi
Toimistotilaa
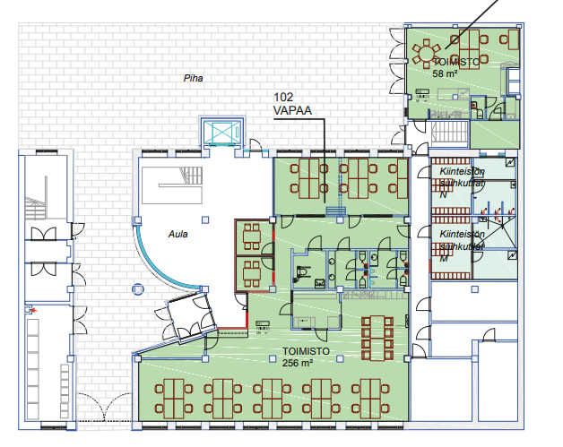
256 m2
Vapautuu
Heti vapaa
Ota yhteyttä
Pyydä lisätietoa
