Vuokrataan toimistotilat - HELSINKI
KUORTANEENKATU 2, VALLILA, 00510 HELSINKI #10862873
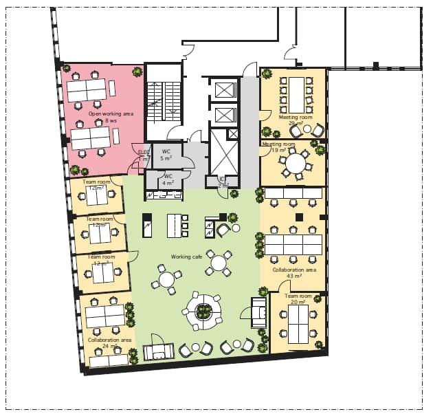
Kuortaneenkatu 2 on laadukas ja valoisa toimistokohde Vallilassa, kävelyetäisyydellä Pasilasta ja Triplan keskukselta. Talo on uudistettu vuosina 2012-2013 ja modernisoitu entisestään vuonna 2020. Kiinteistössä on ravintola, kahvila ja aula palvelemassa vuokralaisia sekä tyylikkäät kokoustilat auditorioineen. Talon tunnistaa sen Kuortaneenkadun puoleisesta lasisesta päädystä, josta tulvii tiloihin runsaasti luonnonvaloa. Talossa on muutenkin isot ikkunat, korkea huonekorkeus ja viihtyisät olosuhteet.
Osoite
KUORTANEENKATU 2, 00510 HELSINKI
Tilatyyppi
Toimistotilaa
402 m2
Vapautuu
Heti vapaa
Ota yhteyttä
Pyydä lisätietoa
