Vuokrataan toimistotilat - HELSINKI
KAARLENKATU 9-11, KALLIO, 00530 HELSINKI #10862843
Kaarlenkatu 9-11 on keskeisellä sijainnilla Kallion kaupunginosassa ja tarjoaa hyvät yhteyden julkisilla kulkuneuvoilla. Kiinteistöstä löytyy täyden palvelun toimisto- ja työtilojen lisäksi aulapalvelu, tapahtumatila, lounasravintola, saunamaailma ja kuntosali. Vuokralainen voi saada kuuluvaksi toimistokalusteet ja tilasuunnittelun, joten sisään muutto on vaivaton. Voit myös suunnitella toimistosi itse.
Osoite
KAARLENKATU 9-11, 00530 HELSINKI
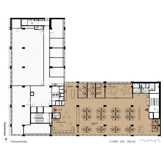
Tilatyyppi
Toimistotilaa
350 m2
Vapautuu
Heti vapaa
Ota yhteyttä
Pyydä lisätietoa
