Vuokrataan toimistotilat - HELSINKI
ITÄMERENTORI 2, RUOHOLAHTI, 00180 HELSINKI #10862829
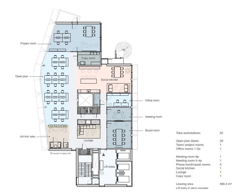
Itämerentorni on Helsingin kahdeksanneksi korkein rakennus: korkeutta sillä on 66 metriä ja kerroksia jopa 16. Rakennus on valmistunut vuonna 2000. Tornin tiloista avautuu upeat maisemat eri suuntiin Ruoholahtea sekä merelle. Torniosan lisäksi kiinteistössä on iso atriumosa, jossa suuri kerroskoko ja pääkonttoritason toimisotilaa. Kokonaisuuteen kuuluu hyvät käyttäjäpalvelut: aula, ravintolat ja kahvilat catering-palveluineen, sosiaalitilat, kuntosali, oma parkkihalli sekä erityisen hieno edustustila tornin ylimmässä kerroksessa saunoineen. Rakennus sijaitsee vastapäätä Ruoholahden metroasemaa ja aivan Länsiväylän juurella.
Osoite
ITÄMERENTORI 2, 00180 HELSINKI
Tilatyyppi
Toimistotilaa
380 m2
Vapautuu
Heti vapaa
Ota yhteyttä
Pyydä lisätietoa
