Vuokrataan toimistotilat - HELSINKI
JOHN STENBERGIN RANTA 2, HAKANIEMI, 00530 HELSINKI #10862826
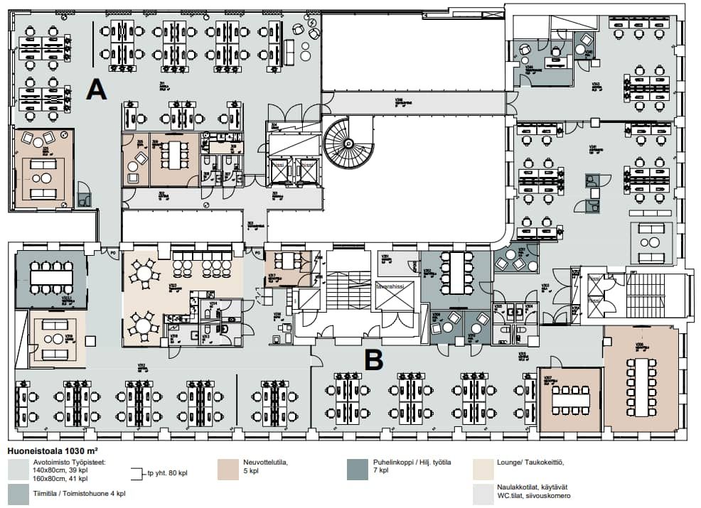
Punatiilinen toimistokiinteistö John S on merkittävä ja tunnistettava maamerkki Pitkänsillanrannalla, hurmaaten moderniksi uudistetulla ilmeellään. Sijaiten näyttävästi meren äärellä, tämä toimistorakennus tarjoaa huippumodernisoituja toimitiloja, jotka erottuvat paitsi tehokkailla pohjaratkaisuillaan, myös upeilla maisemillaan. Jokaisen kerroksen tilankoko on reilusti yli 1000 m², ja se voidaan kätevästi jakaa noin 300 m² ja 730 m² osuuksiin kahdelle eri käyttäjälle, tarjoten joustavuutta erilaisiin tarpeisiin.
Kiinteistön vuokralaisille on tarjolla runsas palveluvalikoima, joka kattaa erikokoisten vuokrattavien neuvottelu- ja tapahtumatilojen lisäksi aulapalvelun, korkeatasoisen lounasravintolan, hyvin varustellun kuntosalin, turvallisen parkkihallin sähkölatauspaikoilla, pyöräparkit, sekä viihtyisät sosiaalitilat. Sijainti on erinomainen ja hyvin näkyvä, ja saavutettavuus on huippuluokkaa – kiinteistöön pääsee mainiosti sekä julkisilla liikennevälineillä, pyörällä että autolla. Hakaniemen kattavat palvelut ovat aivan vieressä, ja Helsingin ydinkeskustakin sijaitsee vain lyhyen matkan päässä.
Olemme innostuneita esittelemään tätä upeaa kohdetta kiinnostuneille! Ole rohkeasti yhteydessä ja varaa aika tutustumiskäynnille!
Terhi Kivekäs
050 365 8603
terhi.kivekas@jll.com
Pekka Issakainen
050 390 0090
pekka.issakainen@jll.com
