Vuokrataan toimistotilat - HELSINKI
FIRDONKATU 1, PASILA, 00520 HELSINKI #10862806
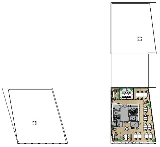
Upea uudiskohde Firdo rakentuu Pasilaan aivan Triplan ja Pasilan juna-aseman viereen. Kohteen valmistuminen Q2/2027 aikana. Kohteelle rakentuu upea 3:n kerroksen korkuinen aula, ja toimistotiloista tulee näyttävät huonekorkeuden ja isojen ikkunoiden ansiosta. Palveluihin lukeutuu mm. ravintola, aulapalvelu, kokouskeskus, parkkihalli ja liikuntatila, joiden lisäksi Triplan kattavat palvelut ovat aivan vieressä. Myös vastuullisuus ja työhyvinvointi ovat Firdossa keskiössä, ja rakennukselle tavoitellaan LEED Platinum ja WELL Gold sertifikaatteja.
Firdoon saa luotua tehokkaita ja huippulaatuisia toimistoratkaisuita niin isoille kuin pienemmillekin toimijoille joustavasti ja tilat suunnitellaan yhteistyössä käyttäjän tarpeiden mukaan. 10. kerrokseen asti kerroskoko on reilu 1600 m2 ja ylemmissä tornikerroksissa kerroskoko.on 249-272 m2.
Ole yhteydessä ja tule tutustumaan upeaan uudiskohteeseen!
