Vuokrataan toimistotilat - HELSINKI
ETELÄESPLANADI 12, KESKUSTA, 00130 HELSINKI #10862795
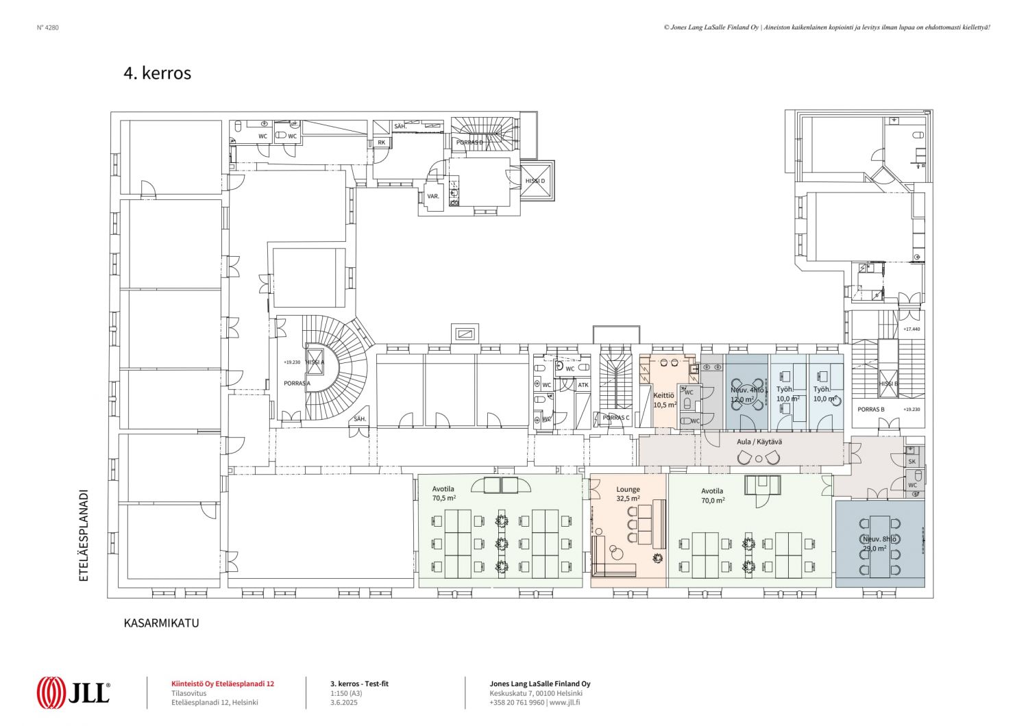
Yksi ydinkeskustan näyttävimpiä arvokiinteistöjä, Eteläesplanadi 12 on vuonna 1899 rakennettu kaunis toimistorakennus. Kivitalosta on upeat näkymät Esplanadin puistoon. Toimistotilat ovat käytännölliset, sopii avotilaksi ja tekniikka on moderni. Talossa on yhteiskäyttöiset suihkutilat ja näyttävät sisäänkäynnit.
Osoite
ETELÄESPLANADI 12, 00130 HELSINKI
Tilatyyppi
Toimistotilaa
315 m2
Vapautuu
Heti vapaa
Ota yhteyttä
Pyydä lisätietoa
