Vuokrataan toimistotilat - HELSINKI
EROTTAJANKATU 15-17, KESKUSTA, 00100 HELSINKI #10862792
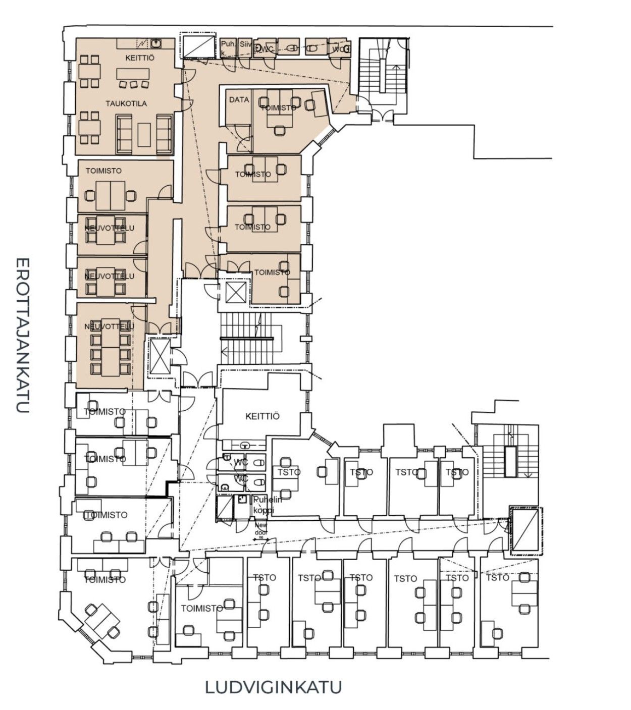
Erottajanmäellä, sen korkeimmalla paikalla sijaitseva upea arvokiinteistö, joka on rakennettu vuonna 1886. Tasokkaasti vuonna 2020 remontoitu pienehkö kiinteistö, jossa hienoja historiallisia elementtejä. Kiinteistön näyttävät toimistotilat kruunaa sisäänkäyntikerroksen entinen elokuvasali, Adams-sali, joka ihastuttaa yksityiskohdillaan. Kohteen ympärillä on yksityisiä parkkihalleja sekä muita palveluita.
Osoite
EROTTAJANKATU 15-17, 00100 HELSINKI
Tilatyyppi
Toimistotilaa
196 m2
Vapautuu
Heti vapaa
Ota yhteyttä
Pyydä lisätietoa
