Vuokrataan toimistotilat - HELSINKI
KAIKUKATU 3, SÖRNÄINEN, 00530 HELSINKI #10862750
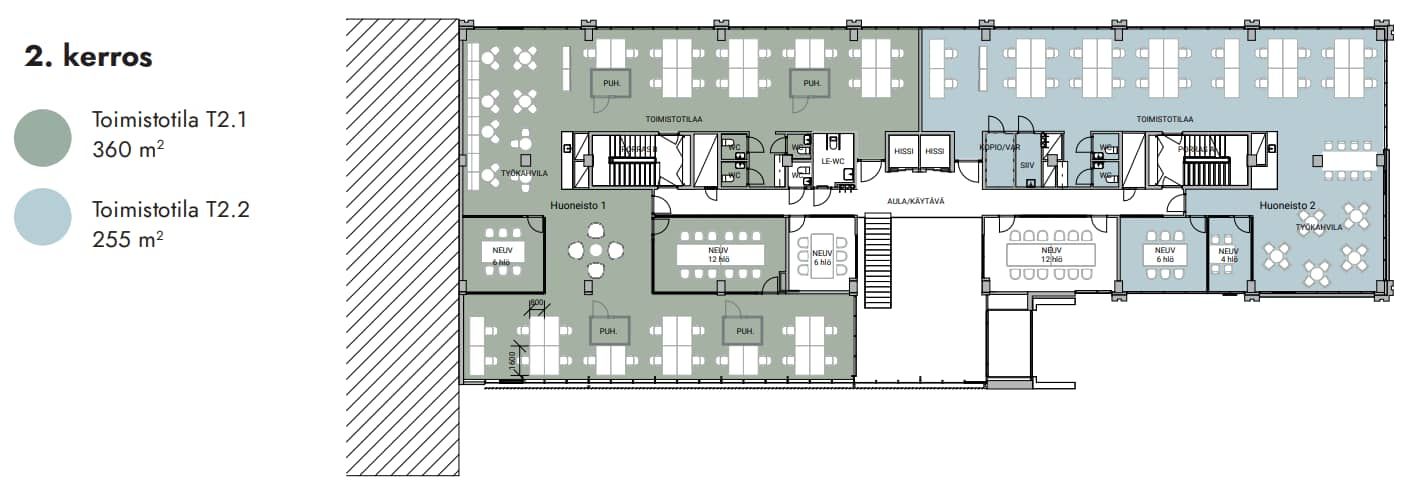
Haiku on uniikki ja upea toimistokohde Kaikukadulla Sörnäisissä, joka on juuri saneerattu täydellisesti vastaamaan modernin työn vaatimuksia, säilyttäen kuitenkin sen ajalleen tyypillisen ulkokuoren ja tunnelman. Kohteella on 650 m2 kerroskoko ja tiloissa mukava kattokorkeus sekä pitkät ikkunarivit. Pohjakerroksessa on tyylikäs korkea sisääntuloaula ja suosittu ravintola Bruket. Haikusta löytyy kaksi vuokrattavaa neuvottelutilaa. Työnmatkalaisille on alakerrassa pyöräparkki ja suihku- ja sosiaalitilat sekä lämmin autohalli suoraan kiinteistön alla. Kohteen sijainti on keskeinen ja saavutettava aivan ratikka- ja bussipysäkkien vieressä ja myös Hakaniemen ja Sörnäisten metroasemat ovat n. 10min kävelymatkan päässä. Haikun saneerauksessa on panostettu erityisen paljon vastuullisuuteen ja kohteelle onkin myönnetty LEED Gold-sertifiointi huippupisteillä.
