Vuokrataan liiketilat - Helsinki
Uudenmaankatu 27, 00120 Helsinki #10862737
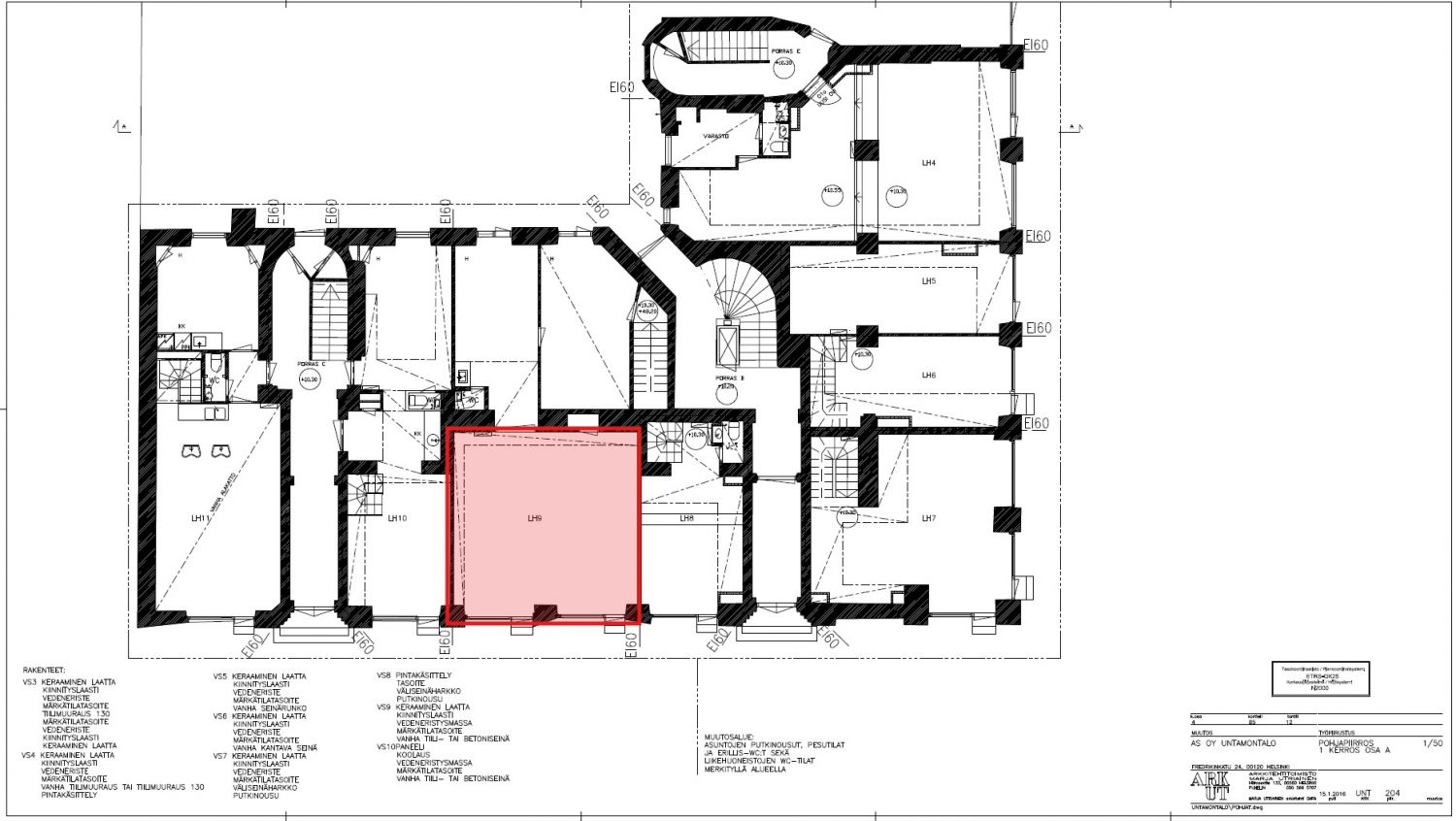
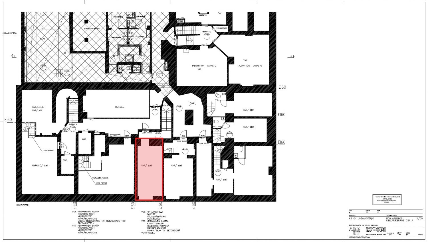
Vuokrataan hyväkuntoinen, kaksikerroksinen liiketila erinomaisella sijainnilla Fredrikinkadun ja Uudenmaankadun kulmatalosta. Tilaa on yhteensä 96 m², josta yläkerta (katutaso) on 81 m² ja alakerta 15 m². Pohjakuvissa tila LH9.
Keskeinen ja hyvin näkyvä sijainti vilkkaalla alueella tarjoaa erinomaiset kulkuyhteydet sekä hyvän asiakasvirran. Tila soveltuu monenlaiseen liiketoimintaan.
Asuinrakennus Uudenmaankatun ja Fredrikinkadun kulmassa. Katutasossa liiketilaa.
Osoite
Uudenmaankatu 27, 00120 Helsinki
Tilatyyppi
Liiketilaa
96 m2
Vapautuu
Kysy
Ota yhteyttä
Pyydä lisätietoa
