Vuokrataan liiketilat, tuotantotilat - Hyvinkää
Helletorpankatu 3, Veikkari, 05840 Hyvinkää #10862717
Vuokrataan toimitilaa Hyvinkäältä
Osoite
Helletorpankatu 3, 05840 Hyvinkää
Tilatyyppi
Liiketilaa
1361 m2
Tuotantotilaa
1361 m2
Yhteensä
1361 m2
Muuta
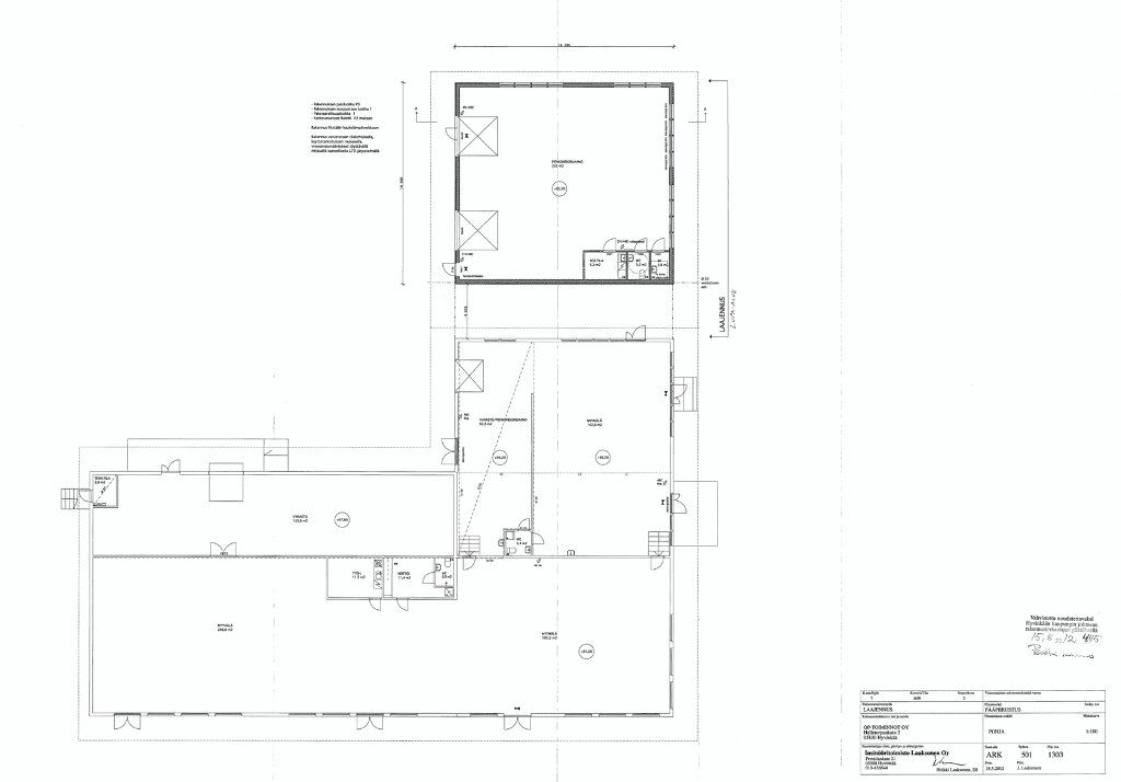
Vuokrattavana toimitilakokonaisuus Hyvinkäällä. Kokonaisuus koostuu 1148 m² myymälätilasta sekä 213 m² erillisestä huoltotilasta, jossa on autonosturit. Tila soveltuu esimerkiksi myymälä- ja huoltotoimintaan.
Huoltotila on erillinen kokonaisuus, joka tukee toiminnan sujuvuutta. Kiinteistö sijaitsee omalla tontilla, ja piha-aluetta on runsaasti erilaisiin käyttötarpeisiin.
Kiinteistön ensimmäinen osa on valmistunut vuonna 2000, laajennus on toteutettu vuonna 2006 ja huoltohalli on rakennettu vuonna 2013. Kohteen sijainti on erinomainen ja se tukee saavutettavuutta ja liiketoimintaa.
Tervetuloa tutustumaan, varaathan välittäjältä oman esittelyaikasi. Voit kysyä meiltä myös muita sopivia vaihtoehtoja, kauttamme löydät juuri Teidän tarpeisiinne sopivat tilat. Palvelumme on tilanhakijalle veloitukseton!
Huoltotila on erillinen kokonaisuus, joka tukee toiminnan sujuvuutta. Kiinteistö sijaitsee omalla tontilla, ja piha-aluetta on runsaasti erilaisiin käyttötarpeisiin.
Kiinteistön ensimmäinen osa on valmistunut vuonna 2000, laajennus on toteutettu vuonna 2006 ja huoltohalli on rakennettu vuonna 2013. Kohteen sijainti on erinomainen ja se tukee saavutettavuutta ja liiketoimintaa.
Tervetuloa tutustumaan, varaathan välittäjältä oman esittelyaikasi. Voit kysyä meiltä myös muita sopivia vaihtoehtoja, kauttamme löydät juuri Teidän tarpeisiinne sopivat tilat. Palvelumme on tilanhakijalle veloitukseton!
Vapautuu
Kysy
Kerros
katutaso
Ota yhteyttä
Tuloskiinteistöt Oy
Rikhardinkatu 2 B 5, 00130 Helsinki
Näytä puhelinnumero
(09) 6841 620
Jorma Ryynänen
Commercial Real Estate Advisor LKV, LVV
Näytä puhelinnumero
+358 40 708 4064
Otto Ahtola
Commercial Real Estate Advisor
Näytä puhelinnumero
+358 40 042 2830
Pyydä lisätietoa
