Vuokrataan toimistotilat - Oulu
Elektroniikkatie 8, 90590 Oulu #10862656
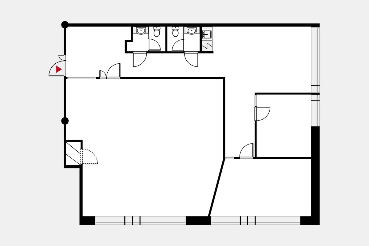
Vuokrattavana kolmannen kerroksen toimistotila, jossa on avotyötilaa, erillisiä huoneita, oma keittiö sekä wc-tilat. Tilan verkko on eriytetty oman ristikytkentätilan kautta, ja työskentelymukavuutta lisää tehokas huonekohtainen jäähdytys. Ilmoitettu pinta-ala sisältää myös kiinteistön yhteisiin tiloihin kohdistuvan jyvityksen.
Linnanmaan kampus tarjoaa kattavat palvelut asiakkailleen. Pääaulassa toimii asiakaspalvelupiste sekä suosittu Compassin lounasravintola, jonka yhteydessä on myös kätevä itsepalvelukioski. Kampuksella on runsaasti kokoustiloja lounaskabineteista koulutustiloihin ja suureen auditorioon.
Pihalla on saatavilla edullisia pysäköintipaikkoja, ja vieraiden käytössä on maksuttomia vieraspaikkoja pääsisäänkäynnin edustalla.
Lisätietoja numerosta 020 7290 710. Lisää kohteita osoitteessa www.premises.fi.
Kohteella ei ole lain edellyttämää energiatodistusta tai energialuokka ei ole tiedossa.Kerros: 3
Kiinteistö sijaitsee Oulun yliopiston vieressä, noin 10 minuutin ajomatkan päässä keskustasta. Julkiset liikenneyhteydet ovat sujuvat, ja lähellä sijaitsee myös Oulun Ideapark.
CRE PREMISES
Puh. Näytä puhelinnumero 020 7290 710
Vantaankoskentie 14
01670 VANTAA
