Vuokrataan liiketilat - Oulu
Paulaharjuntie 20, 90530 Oulu #10862642
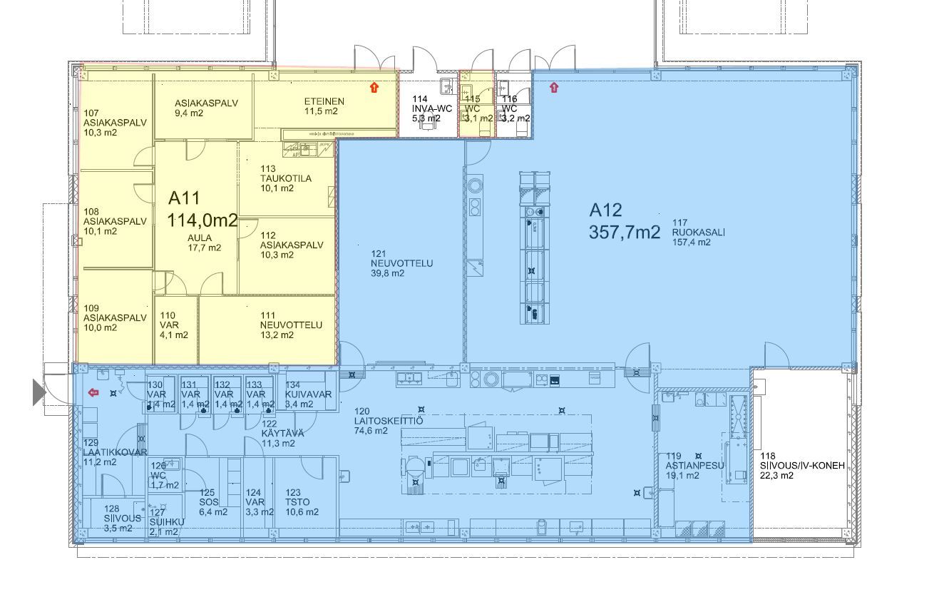
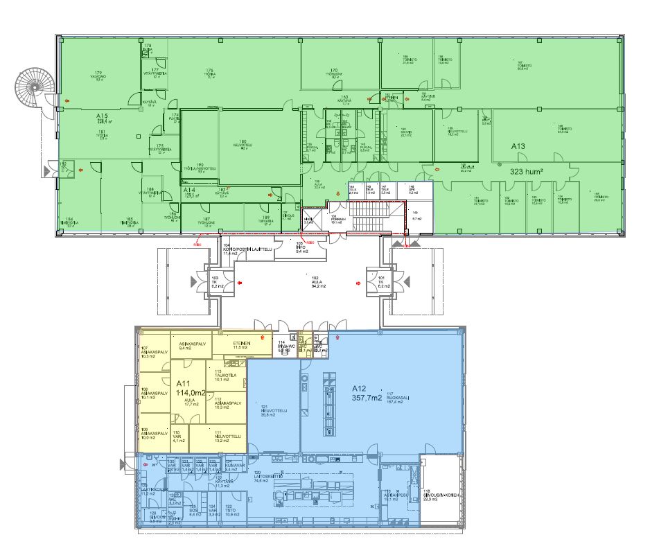
Vuokrataan vapautuva lounasravintolatila 358 m2. Tila koostuu noin 157 m2 ruokasalista, 40m2 neuvottelu/kabinettitilasta sekä 160 m2 laitoskeittiöstä (sis. varastokylmiöt, varastot, astianpesutila sekä sosiaalitilat) Asiakaswc:t löytyvät tilan sisääntuloaulasta. Ohessa kuvia tilasta sekä pohjakuvia, joissa tila merkitty sinisellä.
Kohde sijaitsee Välivainiossa, alle 10 minuutin matkan päässä Oulun keskustasta. Runsaasti asiakaspysäköintitilaa.
Lisätiedot 020 7290 710 ja lisää kohteita premises.fi
Kohteella ei lain edellyttämää energiatodistusta tai energialuokka ei tiedossa.Kerros: katutaso
CRE PREMISES
Puh. Näytä puhelinnumero 020 7290 710
Vantaankoskentie 14
01670 VANTAA
