Vuokrataan - Helsinki
Siltasarenkatu 10, Hakaniemi, 00530 Helsinki #10862624
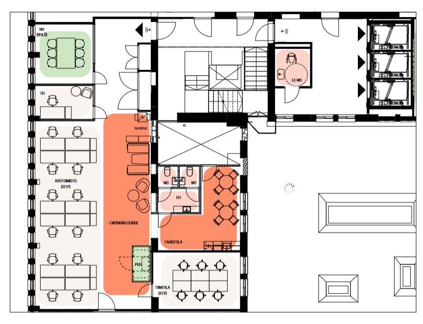
Vuokrattavana moderni muuttovalmis toimisto (201 m2) Siltasaari 10:stä. Kohde tarjoaa yrityksille viihtyisän ja inspiroivan työympäristön ja yksilölliset työtilat Hakaniemen sydämessä.
Kiinteistöstä löytyy aulapalvelu, vuokrattavia neuvottelutiloja, laadukas ravintolakeskittymä ( (mm. The Pantry sekä Bistro Le Coin), polkupyörähalli, oma parkkihalli, suihkulliset sosiaalitilat, sähköauton ja -pyörän latauspiste.
Kohde sijaitsee erinomaisten julkisten liikenneyhteyksien varrella.
Osoite
Siltasarenkatu 10, 00530 Helsinki
Vapautuu
Kysy
Huoneiden lukumäärä
1
Energiatehokkuusluokka
Ei lain edellyttämää energiatodistusta
Ota yhteyttä
RHG Real Estate
Hämeenkatu 2 B20, 20500 Turku
Heli Reinberg
Näytä puhelinnumero
040 647 4900
Pyydä lisätietoa
