Vuokrataan toimistotilat - Turku
Kristiinankatu 9, 20100 Turku #10862619
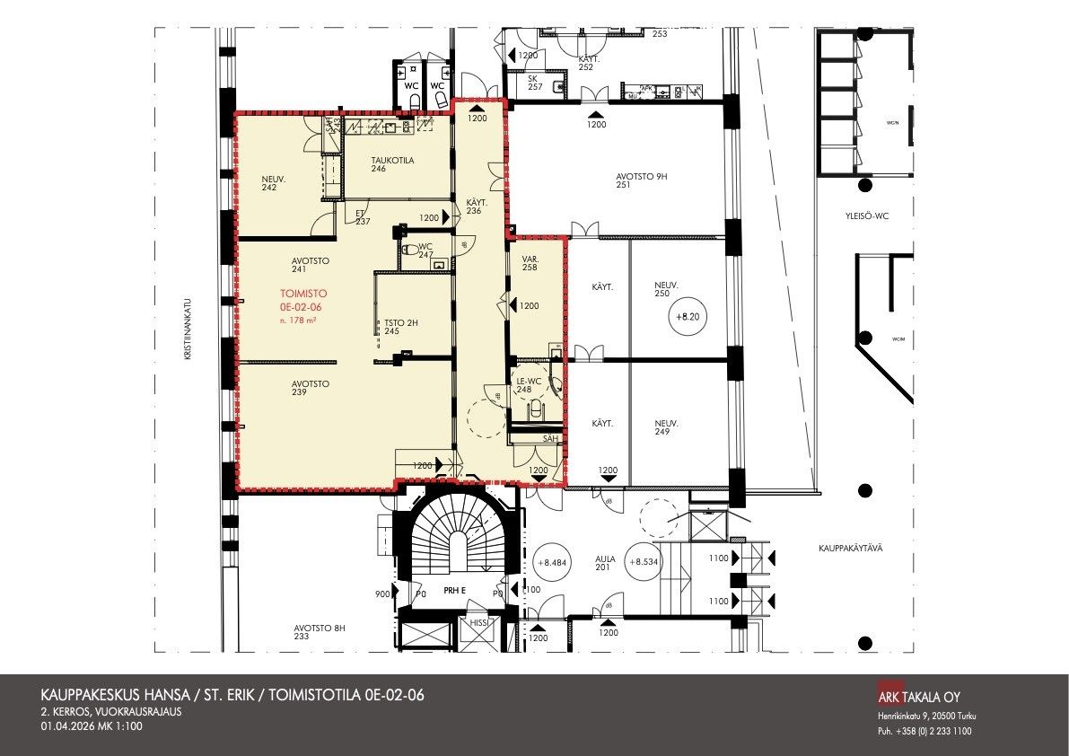
Vuokrattavana siisti ja valoisa 178 m² toimistotila rakennuksen toisesta kerroksesta osoitteesta Kristiinankatu 9, Turku.
Moderni tilakokonaisuus, jossa on avotilan lisäksi neuvottelutila sekä toimistohuone. Lisäksi tilassa on avokeittiö ja inva-wc
Ikkunoista avautuvat näkymät Kristiinankadulle.
Käynti tilaan onnistuu kätevästi joko suoraan Hansakorttelista tai oman rauhallisen rappukäytävän kautta.
Talossa on hissi.
Hansakorttelin monipuoliset palvelut sijaitsevat aivan välittömässä läheisyydessä.
Autopaikkoja on vuokrattavissa Turun Toriparkista, jonne on vaivaton kulku suoraan sisätilojen kautta.
Tila on heti vapaa.
Katso lisää toimistotiloja osoitteesta www.rhg.fi.
Kohteella ei ole lain edellyttämää energiatodistusta.
RHG Real Estate
Hämeenkatu 2 B20, 20500 Turku
Tony Rosenblad
Toimitilavälittäjä
Näytä puhelinnumero
+358 50 551 5375
