Vuokrataan toimistotilat - Turku
Eerikinkatu 13, 20100 Turku #10862617
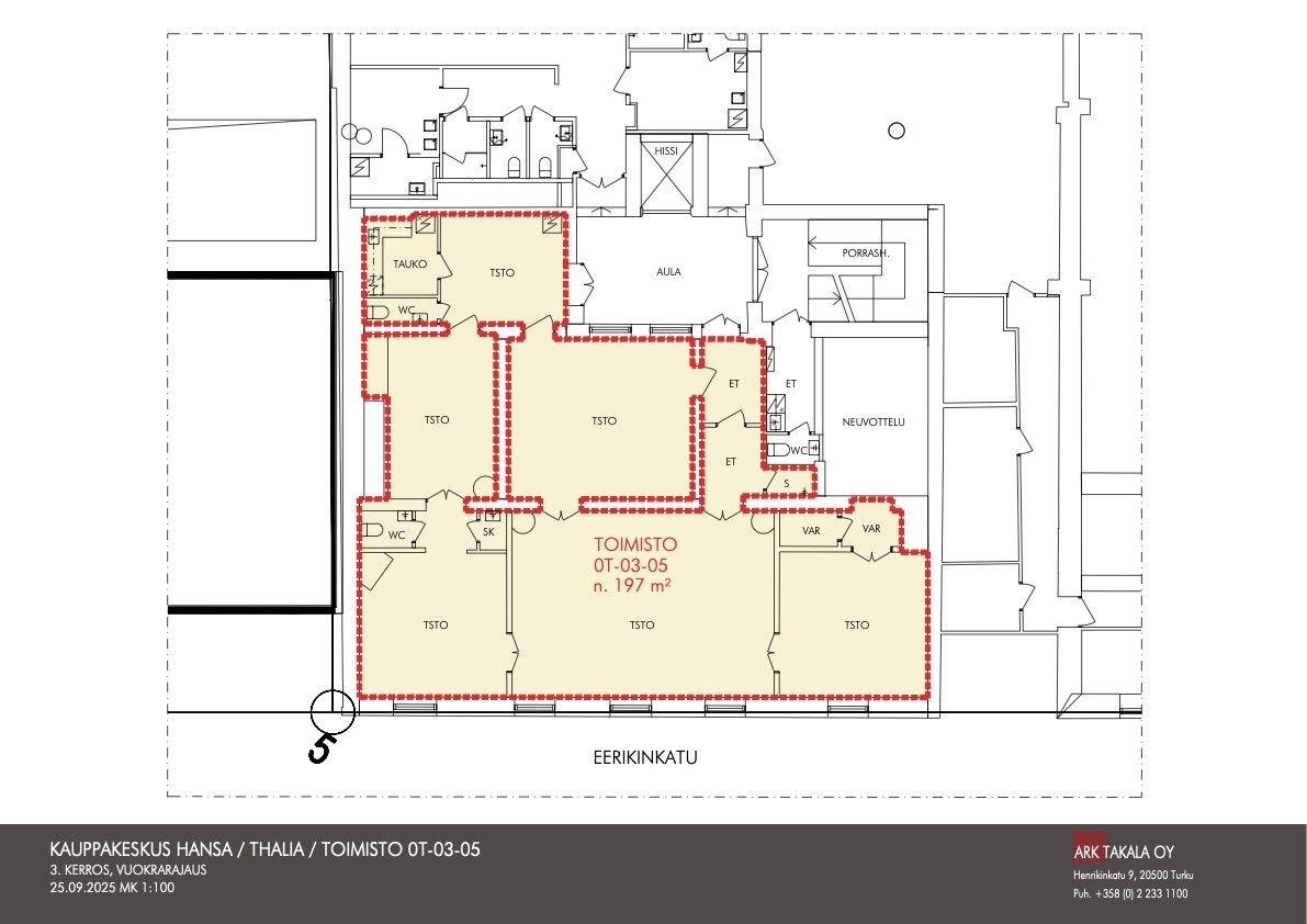
Vuokrattavana 3. kerroksen 204 m2 toimistotila arvokkaassa vanhassa ydinkeskustan talossa, osoitteessa Eerikinkatu 13, Turku.
Tilakokonaisuus käsittää 5–6 erikokoisia huoneita sekä keittiön. Huoneiden suuri huonekorkeus tuo tilaan avaruutta ja arvokasta tunnelmaa.
Huoneistossa on useita vessoja, ja ikkunoista avautuvat näkymät Eerikinkadulle.
Talossa on hissi.
Hansakorttelin monipuoliset palvelut ovat välittömässä läheisyydessä. Parkkipaikkoja on vuokrattavissa Turun Toriparkista, jonne on kätevä kulku suoraan sisätilojen kautta.
Tila on heti vapaa.
Lisää toimistotiloja: www.rhg.fi
Kohteella ei ole lain edellyttämää energiatodistusta.
RHG Real Estate
Hämeenkatu 2 B20, 20500 Turku
Tony Rosenblad
Toimitilavälittäjä
Näytä puhelinnumero
+358 50 551 5375
