Vuokrataan toimistotilat, liiketilat - Raisio
Tasalanaukio 3, Keskusta, 21200 Raisio #10862598
Valoisa ja erinomaisella näkyvyydellä varustettu liiketila Raision sydämessä
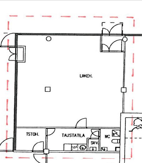
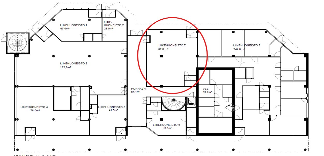
Vuokrataan valoisa 82 m² katutason liiketila Raision keskustassa, osoitteessa Tasalanaukio 3. Tämä avara ja monikäyttöinen tila sijaitsee Raision torin reunalla, ja sen suuret ikkunat avautuvat kahteen suuntaan suoraan torin suuntaan.
Tila on pohjaratkaisultaan selkeä ja avoin, mikä mahdollistaa joustavat sisustusratkaisut niin myymälä-, toimisto- kuin palvelukäyttöönkin. Suuret näyteikkunat tuovat tilaan runsaasti luonnonvaloa ja tarjoavat loistavan pinnan yrityksen markkinoinnille. Sisäänkäynti on vaivaton suoraan katutasosta, mikä palvelee erinomaisesti myös esteetöntä asiointia.
RHG Real Estate
Hämeenkatu 2 B20, 20500 Turku
Juho Viljanen
LKV
Näytä puhelinnumero
040 741 7522
