Vuokrataan - Helsinki
Hankasuontie 9, Konala, 00390 Helsinki #10862578
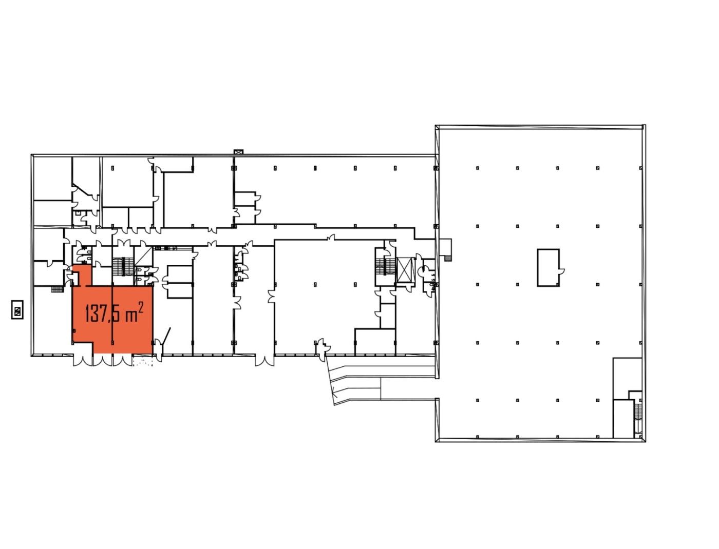
Vuokrataan kahdesta vierekkäisestä tilasta koostuva 137,5 m2 varastokokonaisuus rakennuksen alimmasta kerroksesta. Kokonaisuuteen kuuluu varastotilojen lisäksi pieni toimistohuone. Tilojen välillä on kulku myös sisäkautta. Kulkuyhteys pariovista suoraan pihalta, mikä helpottaa tavaran lastausta ja purkua. Wc on yhteiskäytössä.
Tila ei sovellu autopesu- tai korjaamotoimintaan.
Kiinteistö sijaitsee Vihdintien tuntumassa vilkkaalla Hankasuontien teollisuus- ja yritysalueella. Rakennuksessa toimii tällä hetkellä yrityksiä mm. maahantuonnin, tukkukaupan, kokoonpanon ja B2B-toiminnan parista. Lisätietoa kiinteistöstä.
Kysy lisää: jouko.raitanen@rhg.fi/0504695444
RHG Real Estate
Hämeenkatu 2 B20, 20500 Turku
Jouko Raitanen
Näytä puhelinnumero
050 469 5444
