Vuokrataan - Helsinki
Mekaanikonkatu 1, Herttoniemi, 00800 Helsinki #10862552
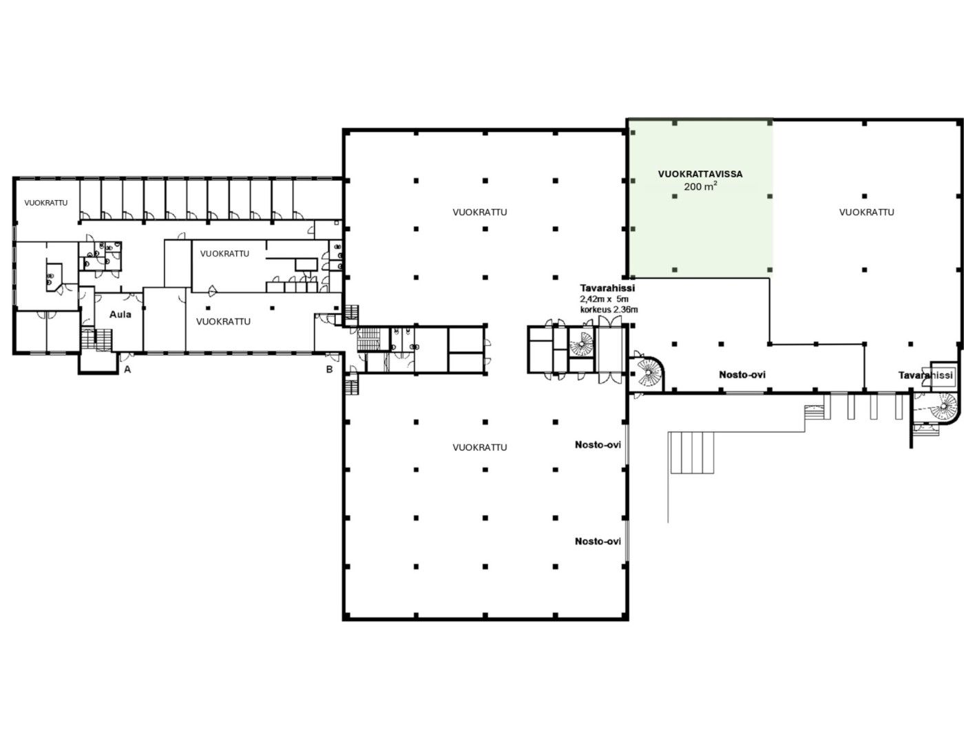
Vuokrataan noin 200 m2 varastotila erinomaisella sijainnilla Herttoniemessa. Tila sijaitsee kiinteistön ensimmäisessä kerroksessa ja sen vapaa korkeus on noin 6 metriä, mikä mahdollistaa tehokkaan varastoinnin ja tilan monipuolisen hyödyntämisen. Käytössä on lastauslaituriyhteys, joka tukee sujuvaa tavaraliikennettä, ja tila on esteetön.
Kokonaisuus vuokrataan yhdessä 182 m2 toimistotilan kanssa, joka sijaitsee kiinteistön toisessa kerroksessa. Ratkaisu mahdollistaa varasto- ja toimistotoimintojen yhdistämisen saman katon alle, mikä tehostaa arjen logistiikkaa ja henkilöstön työskentelyä.
Lisäksi on mahdollisuus saada tila valmiiksi hyllytettynä, kiinteistöltä on saatavilla lisähyllyjä käyttäjän tarpeiden mukaisesti.
Kysy lisää: jouko.raitanen@rhg.fi/0504695444
RHG Real Estate
Hämeenkatu 2 B20, 20500 Turku
Jouko Raitanen
Näytä puhelinnumero
050 469 5444
