Vuokrataan - Helsinki
Hankasuontie 3, Konala, 00390 Helsinki #10862550
Vuokrataan laaja kevytvarasto-/toimistotila Konalan yritysalueella osoitteessa Hankasuontie 3, Helsinki!
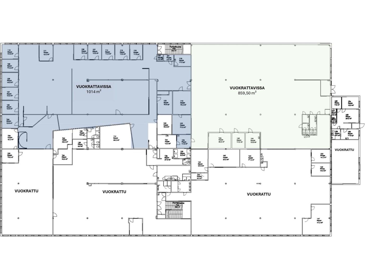
Tila sijaitsee kiinteistön 2. kerroksessa, ja huonekorkeus on noin 2,5 metriä. Toisesta kerroksesta on mahdollista muodostaa käyttäjän tarpeisiin räätälöity kokonaisuus, ja muokattavaa pinta-alaa on yhteensä noin 1 874 m². Kokonaisuus koostuu kahdesta tilasta (1 014 m2 ja 859,5 m2), jotka voidaan vuokrata joko yhtenä kokonaisuutena tai jakaa pienemmiksi, toiminnallisesti sopiviksi tiloiksi.
Tilassa on lastausyhteys ja nosto-ovi, mikä mahdollistaa sujuvan kevyen tavaraliikenteen ja tukee logistisia tarpeita. Tilat voidaan toteuttaa esteettöminä käyttäjän vaatimusten mukaisesti.
Sijainti Konalassa tarjoaa hyvät kulkuyhteydet ja vaivattoman saavutettavuuden niin henkilöstölle kuin asiakkaille. Lisäksi kiinteistön takaosassa sijaitsevalta piha-alueelta on mahdollista järjestää lisäpysäköintipaikkoja tarpeen mukaan.
Kysy lissää: jouko.raitanen@rhg.fi/0504695444
RHG Real Estate
Hämeenkatu 2 B20, 20500 Turku
Jouko Raitanen
Näytä puhelinnumero
050 469 5444
