Vuokrataan liiketilat - Jyväskylä
Tikkutehtaantie 1, Vaajakoski, 40800 Jyväskylä #10862526
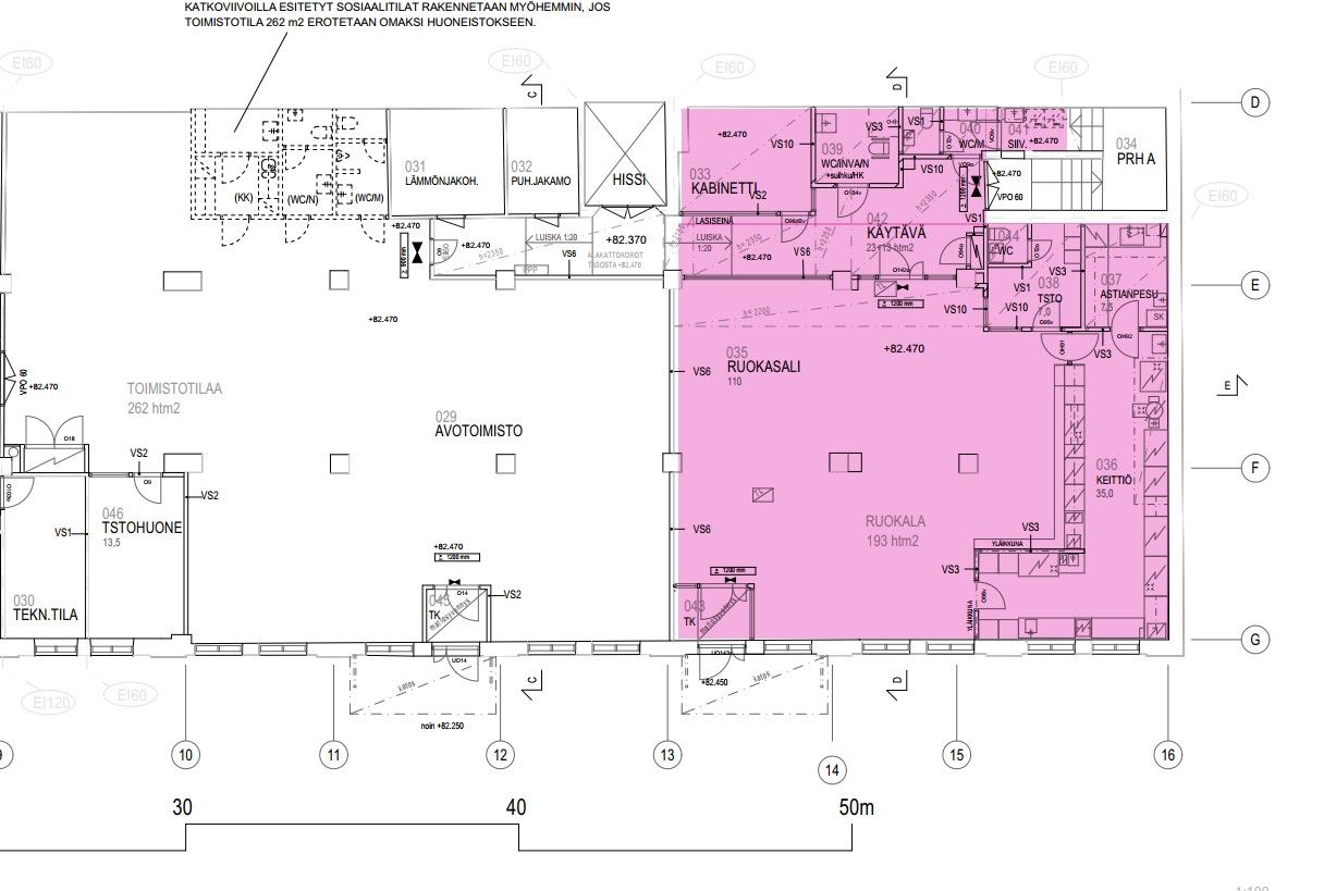
Vuokrataan toimistotilaa Vaajakoskelta
Osoite
Tikkutehtaantie 1, 40800 Jyväskylä
Tilatyyppi
Liiketilaa
193 m2
Tilajako
Jaettavissa
Muuta
Vaajakosken Varassaaressa on katutasosta vapautumassa liiketila mikä soveltuu hyvin mm. ravintola-, pitopalvelu-, tai kahvila-/baaritoimintaan. Tila on toiminut aikaisemmin lounasravintolana. Persoonallinen ja hieno sijainti vanhan Tulitikkutehtaan miljöössä, Vaajavirran rantamaisemissa. Kiinteistöllä hyvin pysäköintitilaa välittömässä läheisyydessä. Soita ja kysy lisää!
Vapautuu
Kysy
Kerros
1
Jaettavissa
Ota yhteyttä
Pyydä lisätietoa
