Vuokrataan toimistotilat - Helsinki
Bulevardi 6, Keskusta, 00120 Helsinki #10862525
Edustavaa toimistotilaa Bulevardilla.
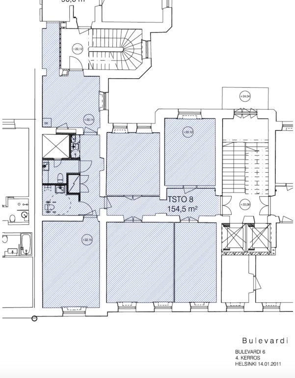
Tämä 154,5 m² toimistotila sijaitsee kiinteistön 4. kerroksessa. Tila koostuu viidestä valoisasta huoneesta. Tilassa on myös omat keittiö- ja sosiaalitilat. Vapautuminen 1.7.2026.
Bulevardi 6 on historiallinen arvokiinteistö loistavalla paikalla Helsingin keskustassa. Kiinteistö saneerattu kestävän kehityksen periaatteita noudattaen ja sen tilat ovat muokattavissa vuokralaisen tarpeiden mukaan, kiinteistöä kuitenkin kunnioittaen. Kiinteistön tiloissa on jäähdytetty koneellinen ilmastointi ja CAT6a- kaapelointi.
Bulevardi 6 on osa Bulevardin kulmaa, jonka muodostavat kolme eri kiinteistöä; Bulevardi 2-4, Erottajankatu 4 ja Bulevardi 6. Se on valmistunut pääosin vuonna 1894 ja sen on suunnitellut arkkitehti Theodor Granstedt. Kiinteistön vanha osa edustaa tyyliltään uusrenessanssia ja uusin osa jugendia.
Kysy lisää numerosta 044 7234 700 tai info@bref.fi. Palvelumme on tilanhakijoille ilmainen.
Hissi
Bureau Real Estate Finland Oy
Lars Sonckin kaari 16, 02600 Espoo
Näytä puhelinnumero
0447234700
Bureau Real Estate Finland Oy
https://www.bref.fi