Vuokrataan toimistotilat - Helsinki
Itämerentalo, Tammasaarenlaituri 3, Ruoholahti, 00180 Helsinki #10862252
Siistiä toimistotilaa Kaapelitehtaan vieressä
Osoite
Tammasaarenlaituri 3, 00180 Helsinki
Tilatyyppi
Toimistotilaa
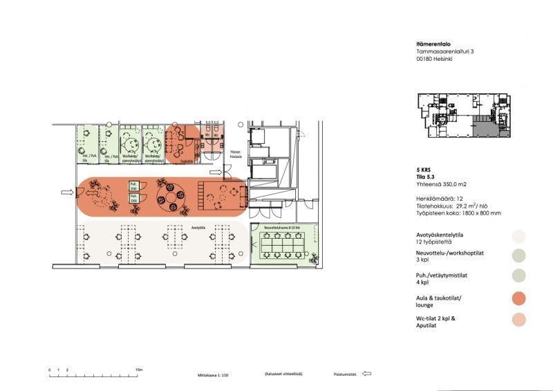
350 m2
Pohjapiirros
Kiinteistö
Vuokrattavana Itämerentalon 5. kerroksessa toimistotila, jossa 5 huonetta, iso kokoushuone ja avotilaa.
Tammasaarenlaituri 3:ssa sijaitseva Itämerentalo soveltuu erityisesti avotoimistokäyttöön. Maineikas betoniarkkitehti Einari Teräsvirta suunnitteli sen alunperin Alkolle. Rakennusvuonnaan 1971 se oli ensimmäinen avokonttoritarkoitukseen rakennettu toimistokiinteistö Suomessa.
Kiinteistössä on useita luovien alojen yrityksiä ja Kaapelitehdas sijaitsee aivan vieressä. Itämerentalo sijaitsee loistavien yhteyksien varrella Lauttasaaren sillan kupeessa ja vain viiden minuutin kävelymatkan päässä Ruoholahden metroasemalta. Lounasravintola löytyy saman katon alta ja autopaikkoja on mahdollista vuokrata kiinteistön autohallista.
Kiinteistölle on myönnetty BREEAM In-Use ympäristösertifioinnin Very Good -taso.
Tammasaarenlaituri 3:ssa sijaitseva Itämerentalo soveltuu erityisesti avotoimistokäyttöön. Maineikas betoniarkkitehti Einari Teräsvirta suunnitteli sen alunperin Alkolle. Rakennusvuonnaan 1971 se oli ensimmäinen avokonttoritarkoitukseen rakennettu toimistokiinteistö Suomessa.
Kiinteistössä on useita luovien alojen yrityksiä ja Kaapelitehdas sijaitsee aivan vieressä. Itämerentalo sijaitsee loistavien yhteyksien varrella Lauttasaaren sillan kupeessa ja vain viiden minuutin kävelymatkan päässä Ruoholahden metroasemalta. Lounasravintola löytyy saman katon alta ja autopaikkoja on mahdollista vuokrata kiinteistön autohallista.
Kiinteistölle on myönnetty BREEAM In-Use ympäristösertifioinnin Very Good -taso.
Vapautuu
Heti
Rakennusvuosi
1971
Saneerausvuosi
1993
Kerros
5 / 5
Energiatehokkuusluokka
E2007
Ympäristöluokitus
BREAAM In-Use, Very Good
Näkyvällä paikalla
Hissi
Ota yhteyttä
ScanReal Oy LKV
Opus Business Park
Hitsaajankatu 24
00810 Helsinki
info@scanreal.fi
Puh:
Näytä puhelinnumero
020 730 8830
Sopivat toimitilat yhdellä otolla!
Kartoitamme toimitilatarpeesi ja etsimme yrityksellesi parhaiten sopivat vapaat toimitilat. Koska vuokranantajat maksavat palvelumme, on tämä yrityksellesi veloituksetonta.
OTA YHTEYTTÄ - SOVI NÄYTTÖ!
Kaikki kohteemme eivät ole netissä, kerro tilatarpeesi niin kartoitamme vaihtoehdot.
Palvelumme on tilanhakijalle ilmainen
Pyydä lisätietoa
